Bénéficiez des services de nos partenaires locaux soigneusement sélectionnés
pour vous accompagner dans votre parcours d'achat immobilier

À vendre - levallois-perret mairie - appartement 2 pièces avec charme de l'ancien de 36,45 m²

— Levallois-Perret 92300 —
379 000 €
36 m²
2 pièces

Nos partenaires locaux
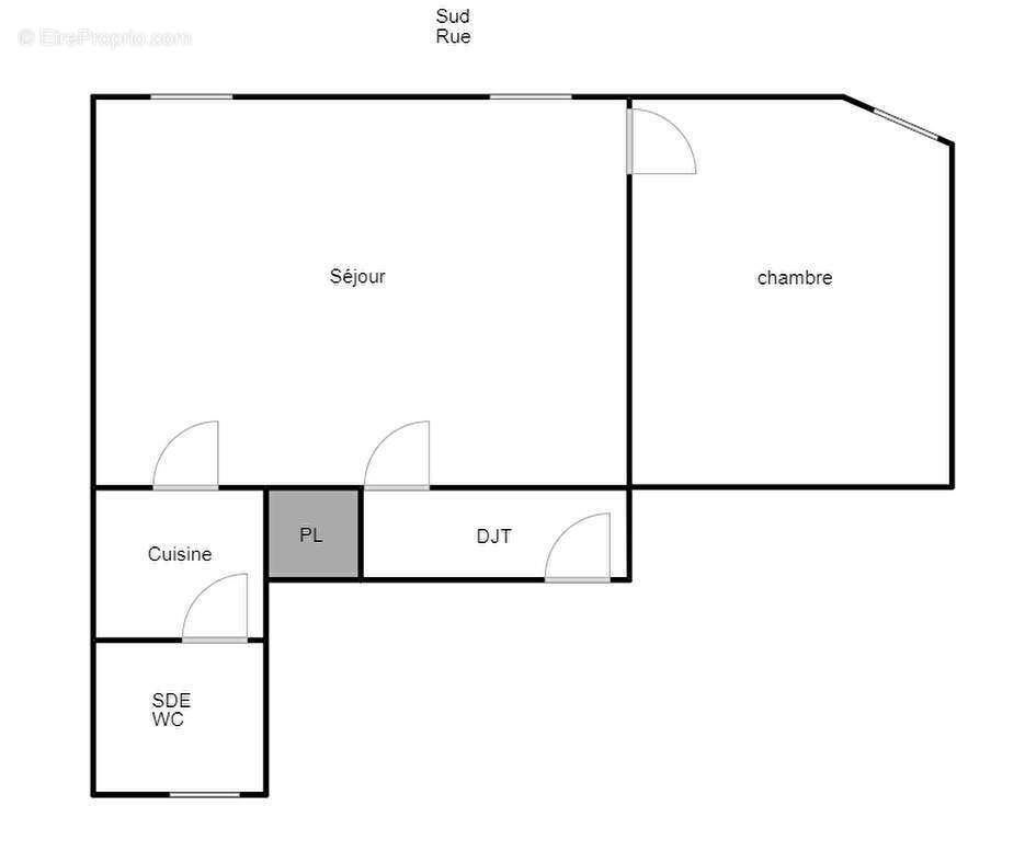
Idéalement situé à deux pas de la Mairie de Levallois-Perret, dans un immeuble ancien bien entretenu, cet appartement de type 2 pièces à vendre se trouve au 3e étage et bénéficie d'un emplacement central, proche des commerces, transports (métro ligne 3) et de toutes commodités. D'une surface de 36,45 m², ce bien séduit par son charme authentique et sa luminosité exceptionnelle grâce à son exposition plein Sud. Il se compose d'une entrée avec rangements, d'un séjour lumineux avec cuisine ouverte aménagée et équipée, d'une chambre confortable, et d'une salle d'eau avec WC. L'appartement, en excellent état général, allie prestations modernes et éléments d'époque. Un bien idéal pour un premier achat, un pied-à-terre ou un investissement patrimonial. Une cave complète ce bien. Prix de vente : 379 000 euros honoraires inclus, à la charge du vendeur Ce bien rare à la vente séduira les amateurs de charme et de fonctionnalité à la recherche d'un bien prêt à vivre, au coeur de Levallois. N'hésitez pas à nous contacter pour plus d'informations ou organiser une visite. Depuis 1993, BUILDING PARTNERS accompagne les propriétaires dans la vente de biens immobiliers de standing sur l'ouest parisien. Notre force ? Une organisation unique avec deux rôles experts : >Les Brokers, spécialisés dans la prospection et la valorisation de votre bien. >Les Sellers, experts en négociation et en mise en relation avec notre portefeuille d'acheteurs qualifiés. Avec 5 agences implantées au coeur des quartiers les plus recherchés (Paris 16e, Paris 17e, Neuilly, Levallois, Courbevoie), nous vous offrons une visibilité maximale, un accompagnement personnalisé et un engagement total jusqu'à la signature. Confiez-nous votre bien pour une vente rapide, au meilleur prix. Estimation offerte, confidentielle et sans engagement. Copropriété de 2 lots - dont 1 lots habitation. (Pas de procédure en cours). Charges annuelles : 1520 euros.
Voir plus

Référence: AV
Bien en copropriété. Nombre de lots : 2. Charges de copropriété : 1520 €.
Honoraires à la charge du vendeur.
Barème des honoraires
DPE
A
B
C
D
E
F
G
GES
A
B
C
D
E
F
G

Prêt immobilier

Vous souhaitez connaître votre capacité d’emprunt et trouver le meilleur crédit immobilier ?
Réaliser une simulation gratuite

Appartement à LEVALLOIS-PERRET
Appartement à LEVALLOIS-PERRET
Appartement à LEVALLOIS-PERRET
Appartement à LEVALLOIS-PERRET
Appartement à LEVALLOIS-PERRET
Appartement à LEVALLOIS-PERRET
Appartement à LEVALLOIS-PERRET
Appartement à LEVALLOIS-PERRET
Ce site est protégé par reCAPTCHA la Politique de confidentialité et les Conditions d’utilisation de Google s’appliquent.
Obtenir un prêt immobilier au meilleur taux ?

En poursuivant votre navigation sans modifier vos paramètres, vous acceptez l'utilisation de cookies susceptibles de réaliser des statistiques de visite. Cliquez ici pour plus d'informations