Bénéficiez des services de nos partenaires locaux soigneusement sélectionnés
pour vous accompagner dans votre parcours d'achat immobilier

Appartement 57m² à lyon-7e

— Lyon-7e 69007 —
240 000 €
58 m²
3 pièces
parkingbalcon/terrasseascenseur

Nos partenaires locaux
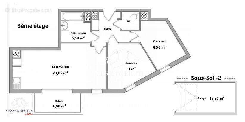
A proximité immédiate du Parc Blandan, dans une copropriété sécurisée de 2014, venez découvrir ce joli T3 de 58 m². Situé au 3ème étage, il se compose d'une entrée avec placard, une pièce de vie avec cuisine meublée donnant sur un agréable balcon sans vis-à-vis de 7m² exposé Est, avec prise électrique et lumière. La partie nuit se compose de deux chambres, d'une salle de bain et d'un WC séparé.
Un garage fermé en sous-sol est disponible en sus pour 20000€.
La copropriété dispose d'un local vélo.
L'appartement est à proximité immédiates des commodités et des transports (Tramway T2 'Route de Vienne' et T4 'Jet D'eau Mendes France'), mais aussi du célèbre campus EM LYON.
Prix de vente du bien : 240 000€ honoraires d'agence inclus Honoraires à la charge du vendeur.
DPE (C) – GES (C) TF : 1 062 €
Appartement soumis au régime de la copropriété.
Pas de procédure en cours.
Charges mensuelles : 75€ comprenant les charges communes, l'entretien de la chaudière et le fonds de travaux.
Nb de lots : 254 dont 120 à usage d'habitation
Les informations sur les risques auxquels ce bien est exposé sont disponibles sur le site Géorisques : www.georisques.gouv.fr
Pour toute demande de renseignement ou de visite, n'hésitez pas à contacter Margaux GUIGNABAUDET au [Coordonnées masquées].

Honoraires à la charge du vendeur. Dans une copropriété de 254 lots. Quote-part moyenne du budget prévisionnel 906 €/an. Aucune procédure n'est en cours. Classe énergie C, Classe climat C Montant estimé des dépenses annuelles d'énergie pour un usage standard : entre 540.00 € et 780.00 € sur les années 2021, 2022 et 2023 (abonnements compris). Les informations sur les risques auxquels ce bien est exposé sont disponibles sur le site Géorisques : georisques.gouv.fr.
Voir plus

Référence: MG-6867-CESARETBRUTUS69
Bien en copropriété. Nombre de lots : 254. Charges de copropriété : 906 €.
Honoraires à la charge du vendeur.
Barème des honoraires
DPE
A
B
C
D
E
F
G
GES
A
B
C
D
E
F
G

Prêt immobilier

Vous souhaitez connaître votre capacité d’emprunt et trouver le meilleur crédit immobilier ?
Réaliser une simulation gratuite

Appartement à LYON-7E
Appartement à LYON-7E
Appartement à LYON-7E
Appartement à LYON-7E
Appartement à LYON-7E
Appartement à LYON-7E
Ce site est protégé par reCAPTCHA la Politique de confidentialité et les Conditions d’utilisation de Google s’appliquent.
Obtenir un prêt immobilier au meilleur taux ?

En poursuivant votre navigation sans modifier vos paramètres, vous acceptez l'utilisation de cookies susceptibles de réaliser des statistiques de visite. Cliquez ici pour plus d'informations