Bénéficiez des services de nos partenaires locaux soigneusement sélectionnés
pour vous accompagner dans votre parcours d'achat immobilier

Cluses - appartement 3 pieces a vendre

— Cluses 74300 —
273 900 €
65 m²
3 pièces
parkingbalcon/terrasse

Nos partenaires locaux
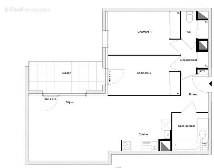
Sur la commune de Cluses, découvrez cet appartement 3 pièces de 65m2 environ à vendre. Situé au 2ème étage d'une résidence livrée en 2025, il saura vous combler par sa luminosité. Composé d'une entrée,d'une belle pièce à vivre comprenant la cuisine équipée, un balcon bénéficiant de la vue sur les massifs environnants complète l'espace. L'espace nuit comprend deux chambres de belles superficie, une salle de bain et un toilette séparé. Le bien comprend une place de parking, local vélo. Ne manquez pas cette opportunité, situé à 3 km de l'autoroute et à 700 mètres de la gare TGV de Cluses. Retrouvez toutes nos annonces sur notre site http://www.edelweiss-immo.com, l'agence Edelweiss Immobilier vous accueille et vous conseille pour toute transaction immobilière achats et ventes. Les informations sur les risques auxquels ce bien est exposé sont disponibles sur le site Géorisques : www.georisques. gouv.fr
Voir plus

Référence: 3108D
Bien en copropriété.
Honoraires à la charge du vendeur.
Barème des honoraires
DPE
A
B
C
D
E
F
G
GES
A
B
C
D
E
F
G

Prêt immobilier

Vous souhaitez connaître votre capacité d’emprunt et trouver le meilleur crédit immobilier ?
Réaliser une simulation gratuite

Appartement à CLUSES
Appartement à CLUSES
Appartement à CLUSES
Ce site est protégé par reCAPTCHA la Politique de confidentialité et les Conditions d’utilisation de Google s’appliquent.
Obtenir un prêt immobilier au meilleur taux ?

En poursuivant votre navigation sans modifier vos paramètres, vous acceptez l'utilisation de cookies susceptibles de réaliser des statistiques de visite. Cliquez ici pour plus d'informations