annonce – lot a : 438 m² constructibles au tampon (pont d’yves)

— Le Tampon 97430 —
118 000 €
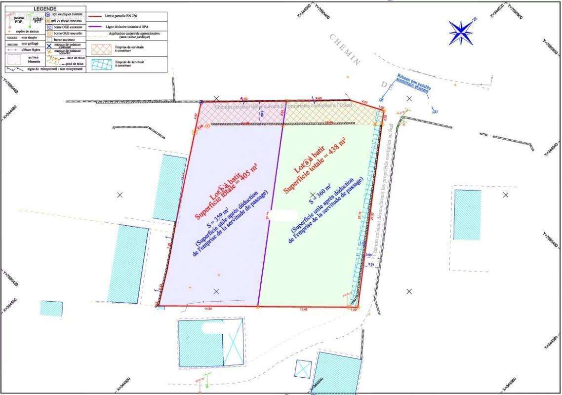
438 m²

À découvrir sur le secteur calme et résidentiel de Pont d'Yves, au Tampon, cette belle parcelle plate de 438 m².
Située à environ 700 mètres d'altitude, elle offre un environnement paisible et la possibilité d'orienter votre future construction pour profiter d'une vue mer et montagne.

Informations principales :

- Superficie : 438 m²

- Viabilisé

- Terrain plat, facile à aménager

- Zone Uc (PLU) :

- Emprise au sol non réglementée

- Hauteur des constructions : 9 m à l'égout du toit / 13 m au faîtage

- Annexes et dépendances : 3,5 m max

Atouts du secteur :

Cadre calme et verdoyant

Bonne accessibilité

Idéal pour un projet de résidence principale ou locatif

Possibilité d'investissement avec le dispositif Girardin à l'IS :
Le dispositif Girardin à l'IS permet de bénéficier d'un avantage fiscal significatif en réalisant une construction neuve destinée à la location.
Vous profitez ainsi d'un crédit ou d'une réduction d'impôt sur les sociétés, sous réserve de respecter les conditions de mise en location (durée, loyers plafonnés, ressources des locataires).

Et pour faciliter vos démarches, nous pouvons également vous mettre en relation avec un professionnel compétent pour créer la société nécessaire à ce type d'investissement.

Une opportunité rare de conjuguer projet immobilier, défiscalisation et accompagnement clé en main !
Voir plus

Référence: 86208078
Honoraires à la charge du vendeur.

Prêt immobilier

Vous souhaitez connaître votre capacité d’emprunt et trouver le meilleur crédit immobilier ?
Réaliser une simulation gratuite

Terrain à LE TAMPON
Terrain à LE TAMPON
Terrain à LE TAMPON
Terrain à LE TAMPON
Terrain à LE TAMPON
Ce site est protégé par reCAPTCHA la Politique de confidentialité et les Conditions d’utilisation de Google s’appliquent.
Obtenir un prêt immobilier au meilleur taux ?

En poursuivant votre navigation sans modifier vos paramètres, vous acceptez l'utilisation de cookies susceptibles de réaliser des statistiques de visite. Cliquez ici pour plus d'informations