annonce – lot b : 405 m² constructibles au tampon (pont d’yves)

— Le Tampon 97430 —
113 000 €
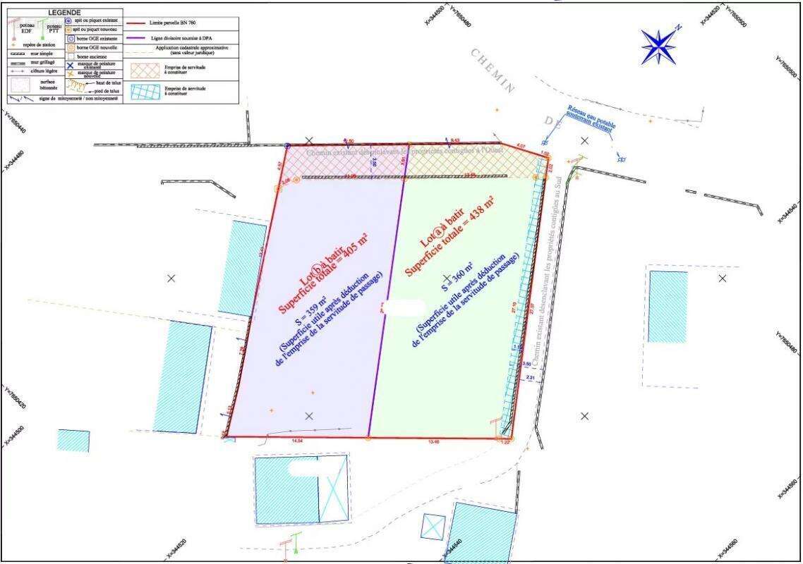
405 m²

Située sur les hauteurs du Tampon, dans le quartier recherché de Pont d'Yves, découvrez cette jolie parcelle plate de 405 m².
À environ 700 mètres d'altitude, vous bénéficierez d'un cadre paisible avec la possibilité d'avoir une vue dégagée mer et montagne.

Informations principales :

- Superficie : 405 m²

- Non viabilisé

- Terrain plat, idéal pour implanter une maison moderne ou traditionnelle.

- Zone Uc (PLU) :

- Emprise au sol non réglementée

- Auteur des constructions : 9 m à l'égout du toit / 13 m au faîtage

- Annexes et dépendances : 3,5 m max

Atouts du secteur :

Environnement calme et serein

Altitude agréable (700 m)

Vue mer et montagne possible

Investir grâce au Girardin à l'IS :
Ce dispositif de défiscalisation ultramarin vous permet d'obtenir un crédit ou une réduction d'impôt sur les sociétés en investissant dans une construction neuve destinée à la location.
Les conditions (durée de mise en location, plafonds de loyers et de ressources) garantissent un cadre sécurisé et avantageux.

Pour vous accompagner, nous pouvons vous mettre en relation avec un professionnel qualifié capable de créer la société adaptée à ce type d'investissement.

Un terrain qui allie cadre de vie exceptionnel, investissement rentable et accompagnement sur mesure ! Honoraires à la charge du vendeur - José STANCA - Agent commercial - EI - RSAC ST PIERRE 894206317
Voir plus

Référence: 86208091
Honoraires à la charge du vendeur.

Prêt immobilier

Vous souhaitez connaître votre capacité d’emprunt et trouver le meilleur crédit immobilier ?
Réaliser une simulation gratuite

Terrain à LE TAMPON
Terrain à LE TAMPON
Terrain à LE TAMPON
Terrain à LE TAMPON
Terrain à LE TAMPON
Ce site est protégé par reCAPTCHA la Politique de confidentialité et les Conditions d’utilisation de Google s’appliquent.
Obtenir un prêt immobilier au meilleur taux ?

En poursuivant votre navigation sans modifier vos paramètres, vous acceptez l'utilisation de cookies susceptibles de réaliser des statistiques de visite. Cliquez ici pour plus d'informations