Entrepôt de stockage sécurisé à bougival

— Bougival 78380 —
168 000 €
86 m²
1 pièce

Yann BORDES vous propose ce bien :

*RARE*
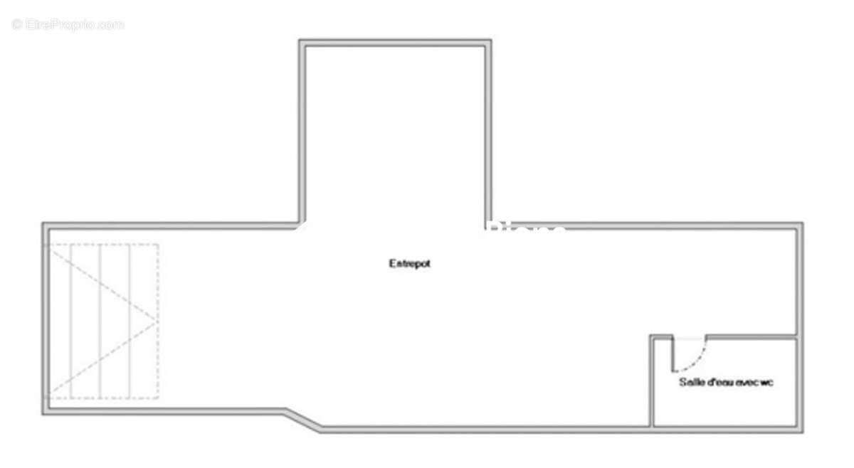
Entrepôt de stockage de 86 m² au sein des historiques Troglodytes 'Blanc de Bougival'.

Plus d'une trentaine d'entreprises ont déjà leurs locaux de stockage au sein de cet édifice historique.

Ce local avec isolation thermique, est doté d'un coin cuisine, d'un vestiaire, d'une salle de bain avec wc, et connecté au Wi-Fi.
Il offre un grand espace de stockage, idéal pour gérer vos fournitures en toute sérénité.

Le bien dispose également d'un rideau métallique et de la visio surveillance pour une sécurité renforcée.

Possibilité d'aménagement des combles d'environ 86 m².

Attention, ce local est sans fenêtres.

Les charges de copropriété s'élèvent à 80 €/mois.

Bougival, charmante commune des Yvelines, est réputée pour son cadre de vie agréable et son dynamisme économique.

Sa proximité avec Paris en fait un emplacement stratégique pour développer votre activité.

Ne manquez pas cette opportunité unique d'acquérir un bien commercial de stockage dans un environnement privilégié.

Opportunité exceptionnelle pour investisseurs ou entrepreneurs à Bougival (78380).

Pour tous compléments d'informations ou visite (7jours/7), contactez Yann Bordes (EI).
Cette annonce vous est proposée par BY Immobilier - MeilleursBiens - N° RSAC: 819485491, Enregistré au Greffe du tribunal de commerce de Versailles - Annonce rédigée et publiée par un Agent Mandataire -\nLes informations sur les risques auxquels ce bien est exposé sont disponibles sur le site Géorisques : www.georisques.gouv.fr
Voir plus

Référence: MB1580120083

Prêt immobilier

Vous souhaitez connaître votre capacité d’emprunt et trouver le meilleur crédit immobilier ?
Réaliser une simulation gratuite

Commerce à BOUGIVAL
Commerce à BOUGIVAL
Commerce à BOUGIVAL
Commerce à BOUGIVAL
Commerce à BOUGIVAL
Ce site est protégé par reCAPTCHA la Politique de confidentialité et les Conditions d’utilisation de Google s’appliquent.
Obtenir un prêt immobilier au meilleur taux ?

En poursuivant votre navigation sans modifier vos paramètres, vous acceptez l'utilisation de cookies susceptibles de réaliser des statistiques de visite. Cliquez ici pour plus d'informations