Bénéficiez des services de nos partenaires locaux soigneusement sélectionnés
pour vous accompagner dans votre parcours d'achat immobilier

Appartement

— Nantes 44200 —
449 000 €
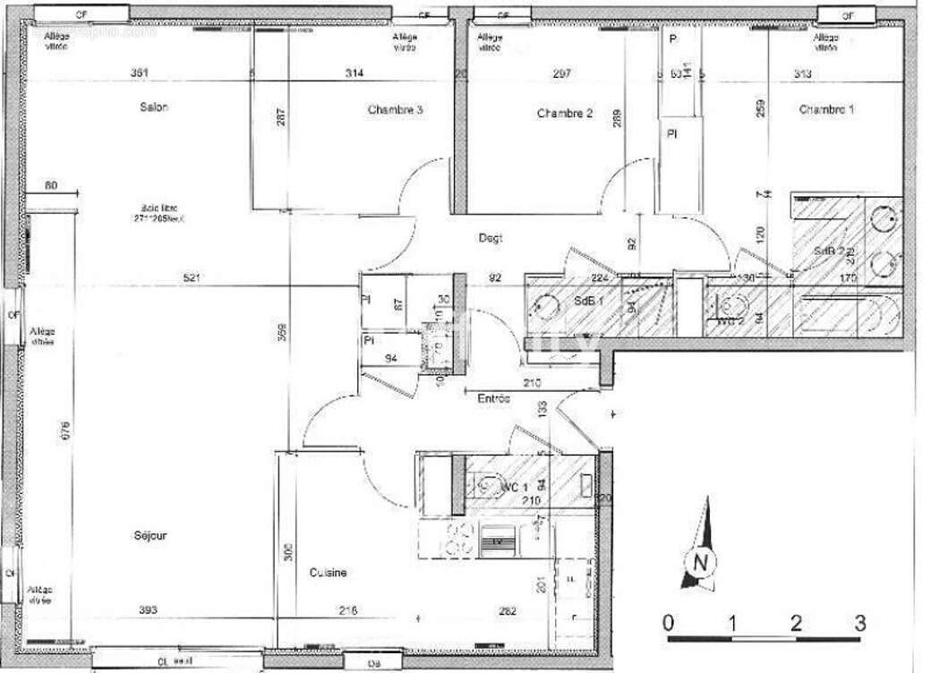
104 m²
5 pièces
balcon/terrasseascenseur

Nos partenaires locaux
44200 NANTES - JARDIN DES FONDERIES - APPARTEMENT FAMILIAL TYPE 4 - LOGEMENT ECOLOGIQUE - DPE B - TERRASSE - EXCELLENT ETAT - CLES EN MAIN

À seulement 150 mètres du tramway (arrêt Vincent Gâche), au pied de l'hypercentre et entouré de toutes les commodités (écoles, commerces, CHU, restaurants, équipements sportifs), découvrez ce très bel appartement familial de 104 m² situé au 4ᵉ étage avec ascenseur d'une résidence moderne de 2009.

Traversant, bénéficiant d'une triple exposition (sud, ouest, nord), il offre un plateau spacieux et lumineux, en excellent état avec une vue dégagée sur le jardin des Fonderies.

Les atouts du bien :

- Un vaste salon-séjour de 41 m² prolongé par un balcon terrasse de 6 m².

- Une cuisine indépendante équipée de 12 m² (possibilité d'ouvrir sur la pièce de vie avec verrière).

- Trois chambres, dont une suite parentale avec salle de bains, double vasque et WC.

- Une salle d'eau et un WC indépendants supplémentaires, nombreux rangements.

La résidence :

- Résidence sécurisée avec ascenseur.

- Ravalement récent (2024) sous garantie décennale.

- Espaces verts, jardin privatif et bornes de recharge électrique.

Le logement bénéficie du réseau de chaleur urbain, alimenté principalement par des énergies renouvelables (biomasse et valorisation des déchets). Ce système écologique et sécurisé garantit une stabilité des coûts, sans chaudière à entretenir ni variations liées aux énergies fossiles.

Informations pratiques :

- Charges annuelles de copropriétés incluant chauffage et eau : 3 758 €

- Garage double de 40 m² en supplément dans la résidence.

Un bien rare : emplacement premium, calme, confort et en excellent état. À visiter sans tarder !
Les informations sur les risques auxquels ce bien est exposé sont disponibles sur le site Georisque : georisques. gouv. fr
Guillaume Aleksanderek - EI - est Agent Commercial mandataire en immobilier, immatriculé au Registre Spécial des Agents Commerciaux du Tribunal de Commerce de Nantes sous le n°795106871.
Siège social du mandant : effiCity, 48 avenue de Villiers - 75017 PARIS - Société par Actions Simplifiée, société au capital de 132 373,05 euros, immatriculée au RCS Paris 497 617 746 et titulaire de la Carte professionnelle CPI 75[Coordonnées masquées]02 025 - CCI Paris IDF - Caisse de Garantie : GALIAN Assurances 89 rue de la Boétie 75008 Paris
Voir plus

Référence: 192808
Bien en copropriété. Nombre de lots : 95. Charges de copropriété : 313 €.
Honoraires d'agence de 3.22% à la charge de l'acquéreur
Barème des honoraires
DPE
A
B
C
D
E
F
G
GES
A
B
C
D
E
F
G

Prêt immobilier

Vous souhaitez connaître votre capacité d’emprunt et trouver le meilleur crédit immobilier ?
Réaliser une simulation gratuite

Appartement à NANTES
Appartement à NANTES
Appartement à NANTES
Appartement à NANTES
Appartement à NANTES
Appartement à NANTES
Appartement à NANTES
Appartement à NANTES
Appartement à NANTES
Appartement à NANTES
Appartement à NANTES
Ce site est protégé par reCAPTCHA la Politique de confidentialité et les Conditions d’utilisation de Google s’appliquent.
Obtenir un prêt immobilier au meilleur taux ?

En poursuivant votre navigation sans modifier vos paramètres, vous acceptez l'utilisation de cookies susceptibles de réaliser des statistiques de visite. Cliquez ici pour plus d'informations