Maison 180m² à bourgnac

— Bourgnac 24400 —
295 000 €
180 m² / 328 m²
7 pièces
balcon/terrassejardinpiscine

24400 MUSSIDAN - MAISON RÉNOVÉE AVEC PISCINE - 5 CHAMBRES - 180 M² - 295 000 €

Frédéric Braun et effiCity, l'agence qui estime votre bien en ligne, vous propose cette magnifique maison rénovée, située à deux pas du centre-ville de Mussidan.

Nichée dans un cadre agréable, cette maison en pierres offre de magnifiques volumes dans une ambiance claire et chaleureuse.

Avec des commodités telles que des magasins, des restaurants et des services de santé à moins de 10 minutes à pied, cette propriété offre un cadre de vie paisible et agréable. L'accès rapide à l'A89 pour rejoindre Bordeaux ou Périgueux et la proximité de Bergerac à seulement 20 minutes sont des atouts indéniables. De plus, la gare de Mussidan est facilement accessible à pied, vous permettant de voyager en toute simplicité.

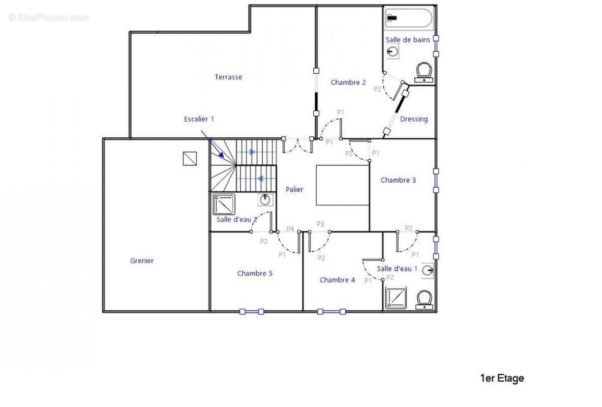
Cette maison de 180m² habitables offre une belle distribution. Au rez-de-chaussée, vous découvrirez un salon/séjour de 50m² avec un poêle de masse, une cuisine équipée, une suite parentale avec dressing, une buanderie et des toilettes. À l'étage, un large palier mène au toit terrasse et dessert 4 chambres : une parentale avec dressing et salle de bains + wc avec accès direct au toit terrasse, une chambre avec salle d'eau + wc et 2 autres chambres avec une salle d'eau + wc.

Le sous-sol offre un espace de 47m² avec un grand espace de stockage et un coin cave. Un garage attenant et un jardin complètent ce bien.

Dotée d'une climatisation dans toutes les pièces, elle est raccordée au tout à l'égout pour un confort optimal.
Cette maison bénéficie d'un état général très bon et d'une luminosité exceptionnelle. Les travaux de rénovation récents en 2023 offrent une qualité de vie optimale à ses futurs habitants.

Sur une parcelle de 328m², vous trouverez une jolie piscine de 4m x 7m à l'abri des regards et un coin barbecue,

Une opportunité à ne pas manquer pour vivre dans un cadre paisible et confortable, tout en étant proche de toutes les commodités.
Les informations sur les risques auxquels ce bien est exposé sont disponibles sur le site Georisque : georisques. gouv. fr
Frédéric Braun - EI - est Agent Commercial mandataire en immobilier, immatriculé au Registre Spécial des Agents Commerciaux du Tribunal de Commerce de Bergerac sous le n°485106363.
Siège social du mandant : effiCity, 48 avenue de Villiers - 75017 PARIS - Société par Actions Simplifiée, société au capital de 132 373,05 euros, immatriculée au RCS Paris 497 617 746 et titulaire de la Carte professionnelle CPI 75[Coordonnées masquées]02 025 - CCI Paris IDF - Caisse de Garantie : GALIAN Assurances 89 rue de la Boétie 75008 Paris
Voir plus

Référence: 193069
Honoraires à la charge du vendeur.
Barème des honoraires
DPE
A
B
C
D
E
F
G
GES
A
B
C
D
E
F
G

Prêt immobilier

Vous souhaitez connaître votre capacité d’emprunt et trouver le meilleur crédit immobilier ?
Réaliser une simulation gratuite

Maison à BOURGNAC
Maison à BOURGNAC
Maison à BOURGNAC
Maison à BOURGNAC
Maison à BOURGNAC
Maison à BOURGNAC
Maison à BOURGNAC
Maison à BOURGNAC
Maison à BOURGNAC
Maison à BOURGNAC
Maison à BOURGNAC
Maison à BOURGNAC
Maison à BOURGNAC
Maison à BOURGNAC
Maison à BOURGNAC
Maison à BOURGNAC
Maison à BOURGNAC
Maison à BOURGNAC
Maison à BOURGNAC
Ce site est protégé par reCAPTCHA la Politique de confidentialité et les Conditions d’utilisation de Google s’appliquent.
Obtenir un prêt immobilier au meilleur taux ?

En poursuivant votre navigation sans modifier vos paramètres, vous acceptez l'utilisation de cookies susceptibles de réaliser des statistiques de visite. Cliquez ici pour plus d'informations