Bénéficiez des services de nos partenaires locaux soigneusement sélectionnés
pour vous accompagner dans votre parcours d'achat immobilier

Rue de berri / champs elysees

— Paris-8e 75008 —
1 260 000 €
54 m²
2 pièces
ascenseuraccès handicapé

Nos partenaires locaux
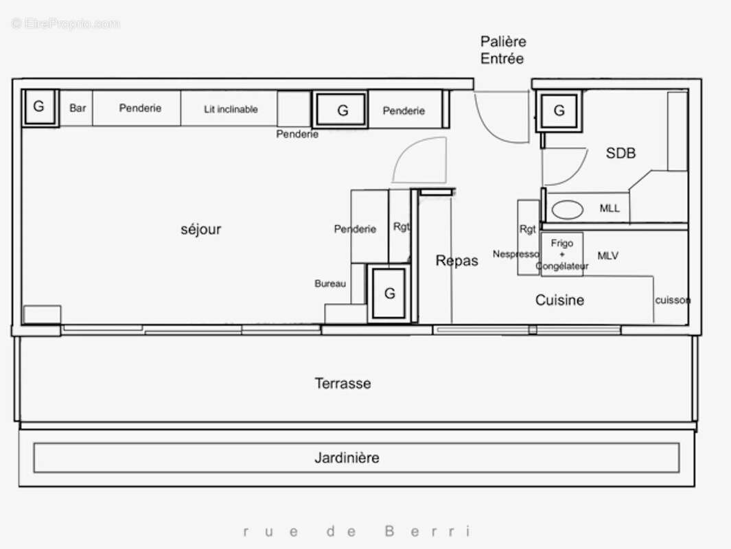
Situé au 7ᵉ étage d’un immeuble moderne de standing, ce grand studio aménagé de 47m² séduit par sa terrasse ensoleillée de 21 m², véritable extension de l’espace de vie.
Entièrement climatisé, ce bien comprend une entrée, une vaste pièce principale avec de nombreux rangements dont un grand lit intégré, une cuisine équipée, un coin TV, ainsi qu’une salle de bains avec toilettes.
Le bien est complété par une cave et une place de stationnement.

DPE : D
Voir plus

Référence: 86208695
DPE
A
B
C
D
E
F
G
GES
A
B
C
D
E
F
G

Prêt immobilier

Vous souhaitez connaître votre capacité d’emprunt et trouver le meilleur crédit immobilier ?
Réaliser une simulation gratuite

Appartement à PARIS-8E
Appartement à PARIS-8E
Appartement à PARIS-8E
Appartement à PARIS-8E
Appartement à PARIS-8E
Appartement à PARIS-8E
Appartement à PARIS-8E
Appartement à PARIS-8E
Ce site est protégé par reCAPTCHA la Politique de confidentialité et les Conditions d’utilisation de Google s’appliquent.
Obtenir un prêt immobilier au meilleur taux ?

En poursuivant votre navigation sans modifier vos paramètres, vous acceptez l'utilisation de cookies susceptibles de réaliser des statistiques de visite. Cliquez ici pour plus d'informations