Maison de plain-pied t4 (113m²) située à tesson (17460) avec un terrain constructible de 1336m² - référence 2904

— Tesson 17460 —
221 700 €
113 m² / 1 336 m²
4 pièces
parkingbalcon/terrassejardin

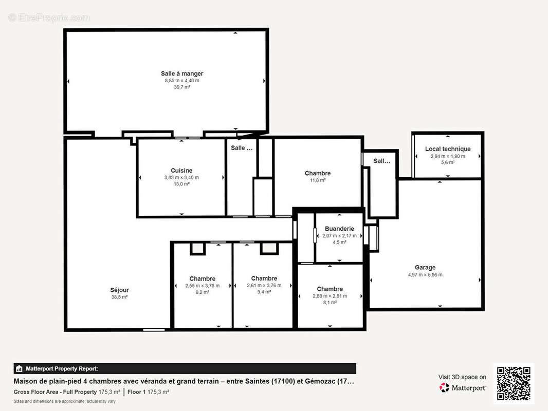
A vendre : Venez découvrir cette maison de plain-pied de 113m² située dans le bourg de TESSON (17460) à proximité des commodités, sur un terrain constructible de 1336m² offrant un cadre de vie paisible et agréable. Visite immersive disponible pour une première découverte en 3D, une visite virtuelle immersive est proposée. Il suffit de contacter notre agence pour obtenir le mot de passe de connexion. D'une surface de 113 m², cette maison de plain-pied dispose d'un grand séjour de 38 m², d'une cuisine ouverte aménagée et équipée, d'un bureau, trois chambres dont une avec salle d'eau et WC et deux avec un placard. Elle offre aussi une salle de bains, un WC indépendant et une buanderie. En complément, cette maison dispose d'une véranda de 38m² fermée. La maison est agrémentée d'un garage de 28m² avec un grenier. Le terrain de 1336 m² constructible vous offre un espace extérieur agréable, clos et arboré. Le chauffage est assuré par une cheminée ainsi que par des radiateurs électriques et l'eau chaude est produite par un ballon électrique. N'attendez plus pour visiter cette exclusivité de l'agence Laforêt GEMOZAC, un bien rare sur le marché !
Voir plus

Référence: 4413
Honoraires d'agence de 5.57% à la charge de l'acquéreur
Barème des honoraires
DPE
A
B
C
D
E
F
G
GES
A
B
C
D
E
F
G

Prêt immobilier

Vous souhaitez connaître votre capacité d’emprunt et trouver le meilleur crédit immobilier ?
Réaliser une simulation gratuite

Maison à TESSON
Maison à TESSON
Maison à TESSON
Maison à TESSON
Maison à TESSON
Maison à TESSON
Maison à TESSON
Maison à TESSON
Maison à TESSON
Maison à TESSON
Maison à TESSON
Maison à TESSON
Maison à TESSON
Maison à TESSON
Maison à TESSON
Maison à TESSON
Maison à TESSON
Maison à TESSON
Ce site est protégé par reCAPTCHA la Politique de confidentialité et les Conditions d’utilisation de Google s’appliquent.
Obtenir un prêt immobilier au meilleur taux ?

En poursuivant votre navigation sans modifier vos paramètres, vous acceptez l'utilisation de cookies susceptibles de réaliser des statistiques de visite. Cliquez ici pour plus d'informations