Bénéficiez des services de nos partenaires locaux soigneusement sélectionnés
pour vous accompagner dans votre parcours d'achat immobilier

Appartement 85m² à canet-en-roussillon

— Canet-En-Roussillon 66140 —
374 900 €
85 m²
3 pièces
parkingbalcon/terrasseascenseur

Nos partenaires locaux
DERNIERES OPPORTUNITES !!

A vendre à Canet-plage, appartements de standing:

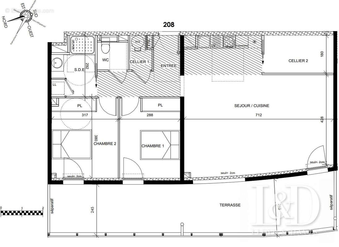
APPARTEMENT T3 de 85 m2 situé au deuxième étage et orienté Ouest.
Ce bien se compose d'un séjour / cuisine de 40,20 m2, deux chambres, une salle d'eau, deux celliers, et un wc indépendant.
Grande terrasse de 35 m2.
Un garage complète ce bien .


Avec ses 9 km de plage de sable fin labellisée Pavillon Bleu, Canet-Plage est une ville littorale qui vit toute l'année. A seulement 10 km de Perpignan, elle offre à ses habitants toutes les commodités citadines.
Situé en entrée de ville, face au port et à deux pas de la plage, le quartier Port Alizés vous offre confort et qualité de vie au quotidien. Ses principaux commerces et services sont accessibles à pied.
Port Alizés présente par ailleurs une situation stratégique : L'A9 est rapidement accessible que ce soit pour relier Perpignan, Toulouse, Montpellier ou Barcelone.

Deux autres biens sont à la vente
APPARTEMENT T3 de 63 m2 situé au troisième étage et orienté Est
Terrasse de 20 m2
Un garage complète ce bien
PRIX: 305900 euros

APPARTEMENT T3 de 85 m2 situé au troisième étage et orienté Ouest
Terrasse de 35 m2
Un garage complète ce bien .
PRIX: 409900 euros

Renseignements et visites: contactez, CHRISTEL FORTIN, au [Coordonnées masquées]
consultante immobilier, E.I, agence LLOYD and Davis, inscrite au rsac Perpignan n° 511613374.



Honoraires à la charge du vendeur. Dans une copropriété de 44 lots. Quote-part moyenne du budget prévisionnel 1 530 €/an. Aucune procédure n'est en cours. DPE vierge. Les informations sur les risques auxquels ce bien est exposé sont disponibles sur le site Géorisques : georisques.gouv.fr.

Votre conseiller LLOYD & DAVIS : Christel FORTIN
Agent commercial (Entreprise individuelle)
RSAC 511 613 374 PERPIGNAN
RCP ACI14898 Sérénis Assurances
Voir plus

Référence: 5829-LLOYD&DAVIS
Bien en copropriété. Nombre de lots : 44. Charges de copropriété : 1530 €.
Honoraires à la charge du vendeur.
Barème des honoraires

Prêt immobilier

Vous souhaitez connaître votre capacité d’emprunt et trouver le meilleur crédit immobilier ?
Réaliser une simulation gratuite

Appartement à CANET-EN-ROUSSILLON
Appartement à CANET-EN-ROUSSILLON
Appartement à CANET-EN-ROUSSILLON
Appartement à CANET-EN-ROUSSILLON
Appartement à CANET-EN-ROUSSILLON
Ce site est protégé par reCAPTCHA la Politique de confidentialité et les Conditions d’utilisation de Google s’appliquent.
Obtenir un prêt immobilier au meilleur taux ?

En poursuivant votre navigation sans modifier vos paramètres, vous acceptez l'utilisation de cookies susceptibles de réaliser des statistiques de visite. Cliquez ici pour plus d'informations