Maison 333m² à lauriere

— Lauriere 87370 —
167 000 €
333 m² / 4 549 m²
15 pièces
jardin

Iad France - Sophie Le Moigne vous propose : La propriété située au cOEur du bourg de Laurière se compose d'une grande grange et de deux maisons attenantes et communicantes, l'une typée longère et l'autre typée maison de Maitre, le tout sur 5550 m² de terrain. La configuration des lieux, tant au niveau du bâti que des extérieurs, permet tout type de scenario d'aménagement lors de la rénovation complète qui s'impose (prévoir à minima un budget de 250Ke).
Vous pourrez laisser libre cours à vos projets (résidence multigénérationnelle, activité de gite ou de chambre d'hôtes, revente à la découpe, activité libérale ...) et redonner à ce lieu un cadre de vie unique !

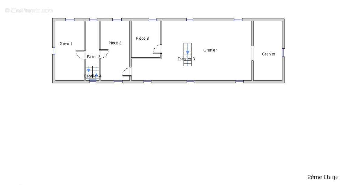
La première maison de 220 m² de style longère se répartit sur deux niveaux habitables et un grenier de 110 m². La maison de Maitre quant à elle totalise 130 m² sur deux niveaux plus un grenier de 65 m².
Aujourd'hui les deux maisons communiquent entre elles et sont aménagées comme suit.
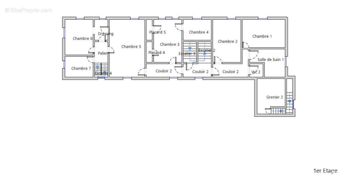
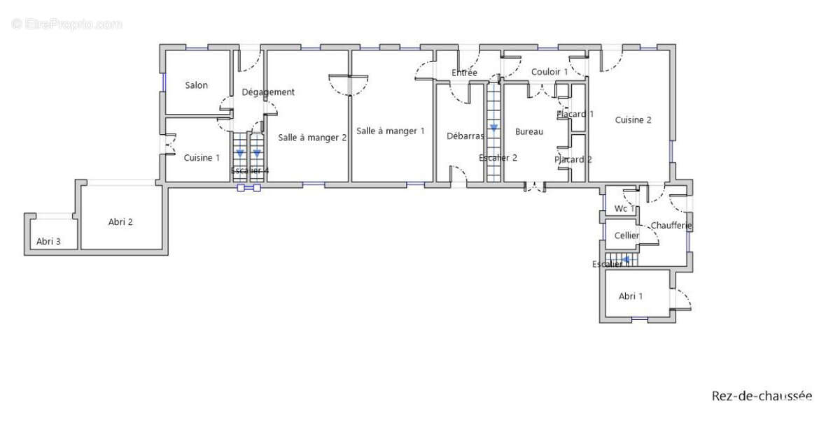
Au rdc de la longère, l'entrée principale donne accès à l'étage par un large escalier et au jardin arrière par un vestibule de 8 m². Elle distribue d'une part la grande cuisine dinatoire de 28 m² (donnant à l'arrière accès à la chaufferie au cellier et au WC), et le bureau de 20 m² ouvrant lui aussi sur le jardin. D'autre part elle s'ouvre un salon de 27 m² avec une grande cheminée en marbre. À l'étage un long couloir dessert trois chambres spacieuses de 20,24 et 19 m² dont l'une avec pièce supplémentaire de 6 m², une salle de bain de 5 m² et un WC indépendant.
Enfin un magnifique grenier de 120 m² sous rampant et non cloisonné n'attend que vos idées d'aménagement.

Au rdc de la maison de Maître, l'entrée principale de 8 m² dessert une grande salle à manger de 30 m², un salon de 14 m² et une ancienne cuisine de 12 m². À l'étage la répartition des pièces est identique. Une grande chambre de 30 m², un vestibule de 5 m², et deux chambres de 12 et 14 m². Le grenier de 65 m² mansardé pourrait être aménagé en chambres supplémentaires ou en bureau avec ses chiens assis offrant une jolie vue sur le village de Laurière.
À cet ensemble s'ajoute une grange de 100 m² avec un atelier sous la barge, un porche (servant aujourd'hui pour le stockage du bois), une enfilade de poulaillers et deux abris.
Le Parc de plus de 4000 m² se divise en différents espaces : À l'arrière de la grange l'ancien potager / verger de 650 m², la cour de la grande maison avec son puits et sa table en pierre de 300 m², L'allée de la maison de maitre de 300 m² séparée du verger de 1500 m² par des haies de lauriers, le jardin à l'arrière de 800 m², l'espace entre la grange et les bâtiments de 500 m²
L'ensemble est clôturé par un mur d'enceinte sur la presque totalité du bien et par des clôtures sur l'arrière coté potager.
Comme précisé en début d'annonce ce bien nécessite une rénovation en profondeur.
D'un point de vue technique la restauration porte sur les points principaux suivants :

Longère :
-Couverture à réviser avec reprise partielle de la charpente au-dessus de la chaufferie ( +/ - 20 m²).
-Plâtrerie.
-Isolation.
-Huisseries bois simple vitrage et persiennes métalliques : 4 portes dont la porte d'entrée principale, Une porte double fenêtre et 18 fenêtres.
-Raccordement au tout à l'égout fait
-Électricité et plomberie à reprendre
-Chauffage par ancienne chaudière à bois avec distribution par radiateurs.

Maison de Maitre :
-Couverture à réviser.
-Enduits des façades à purger et à refaire.
-Raccordement au tout à l'égout à prévoir.
-Plomberie et électricité.
-Huisseries bois simple vitrage à changer (2 portes, 10 fenêtres et 3 chiens assis).
-Planchers et solivage partiel au rdc à reprendre.
-Isolation.
-Absence de chauffage.
-Plâtrerie murs et plafonds.
-Création salle de bain et d'une cuisine.



Honoraires d'agence à la charge...
Informations LOI ALUR :
Honoraires charge vendeur. (gedeon_6727_31848707)
Voir plus

Référence: 1837987
Honoraires à la charge du vendeur.
DPE
A
B
C
D
E
F
G
GES
A
B
C
D
E
F
G

Prêt immobilier

Vous souhaitez connaître votre capacité d’emprunt et trouver le meilleur crédit immobilier ?
Réaliser une simulation gratuite

Photo 1 - Maison à LAURIERE
Photo 1
Photo 2 - Maison à LAURIERE
Photo 2
Photo 3 - Maison à LAURIERE
Photo 3
Photo 4 - Maison à LAURIERE
Photo 4
Photo 5 - Maison à LAURIERE
Photo 5
Photo 6 - Maison à LAURIERE
Photo 6
Photo 7 - Maison à LAURIERE
Photo 7
Photo 8 - Maison à LAURIERE
Photo 8
Photo 9 - Maison à LAURIERE
Photo 9
Ce site est protégé par reCAPTCHA la Politique de confidentialité et les Conditions d’utilisation de Google s’appliquent.
Obtenir un prêt immobilier au meilleur taux ?

En poursuivant votre navigation sans modifier vos paramètres, vous acceptez l'utilisation de cookies susceptibles de réaliser des statistiques de visite. Cliquez ici pour plus d'informations