Commerce 155m² à vasles

— Vasles 79340 —
85 000 €
155 m² / 107 m²
3 pièces

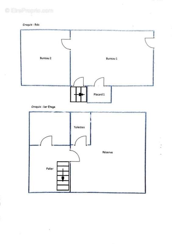
À 30' réelles de Poitiers, important potentiel pour ce Bâtiment en centre bourg possédant au RDC : Pièce principale avec vitrine (51.76 m²) Seconde pièce avec vitrine (27.57 m²) Débarras, très grands placards avec portes coulissantes dans les 2 pièces, Dégagement menant à un escalier en bois qui mène au palier de l'étage desservant une pièce principale avec kitchenette (27.04 m²) WC
Enfin, un second escalier en bois mène au grenier avec puits de lumière
Pompe à chaleur
Climatisation réversible au RDC & à l'étage
Sol PVC type carrelage au RDC & parquet flottant à l'étage
Ouvertures extérieures PVC, double vitrage
Lumière à LED au RDC & néon à l'étage
Normes incendie (pas PMR)
Système protection électronique
ADSL (la fibre passe devant)
Compteur Linky
Location envisageable en 3 parties
Possibilité d'agrandissement
Stationnement à côté & parking public gratuit à 20M
Ecole, Cinéma, Marché hebdomadaire, Maison de santé, Commerces, Pharmacie, Supermarché.
N'hésitez pas à me joindre 7 / 7 de 8h à 20h
Rendez-vous visite possible 7 / 7 9h à 18h

Les informations sur les risques auxquels ce bien est exposé sont disponibles sur le site Géorisques : www.georisques.gouv.fr
Prix de vente honoraires d'agence inclus : 85 000 ¤ HT + 1 700 ¤ TVA, soit 86 700 ¤ TTC
Prix de vente hors honoraires d'agence : 76 500 ¤ HT + 0 ¤ TVA, soit 76 500 ¤ TTC
Honoraires d'agence : 8 500 ¤ HT + 1 700 ¤ TVA, soit 10 200 ¤ TTC (13.33 % TTC du prix de vente hors honoraires d'agence)
Honoraires charge acquéreur

Contactez votre conseiller SAFTI : Patrick FOUCAULT, Tél. : [Coordonnées masquées], E-mail : [Coordonnées masquées] - EI - Agent commercial immatriculé au RSAC de La Rochelle sous le numéro 890 205 461.
Informations LOI ALUR :
Honoraires : 11.11 % TTC charge acquéreur.
Prix hors honoraires : 76 500 ¤. (gedeon_26118_31840700)
Voir plus

Référence: 739331
Honoraires d'agence de 11.11% à la charge de l'acquéreur
Barème des honoraires
DPE
A
B
C
D
E
F
G
GES
A
B
C
D
E
F
G

Prêt immobilier

Vous souhaitez connaître votre capacité d’emprunt et trouver le meilleur crédit immobilier ?
Réaliser une simulation gratuite

Photo 1 - Commerce à VASLES
Photo 1
Photo 2 - Commerce à VASLES
Photo 2
Photo 3 - Commerce à VASLES
Photo 3
Photo 4 - Commerce à VASLES
Photo 4
Photo 5 - Commerce à VASLES
Photo 5
Photo 6 - Commerce à VASLES
Photo 6
Photo 7 - Commerce à VASLES
Photo 7
Photo 8 - Commerce à VASLES
Photo 8
Photo 9 - Commerce à VASLES
Photo 9
Ce site est protégé par reCAPTCHA la Politique de confidentialité et les Conditions d’utilisation de Google s’appliquent.
Obtenir un prêt immobilier au meilleur taux ?

En poursuivant votre navigation sans modifier vos paramètres, vous acceptez l'utilisation de cookies susceptibles de réaliser des statistiques de visite. Cliquez ici pour plus d'informations