Bénéficiez des services de nos partenaires locaux soigneusement sélectionnés
pour vous accompagner dans votre parcours d'achat immobilier

Magnifique maison d'architecte - surface au sol 258m2 - jardin - vue dégagée exceptionnelle

— Le Plessis-Robinson 92350 —
1 295 000 €
258 m² / 480 m²
7 pièces
parkingbalcon/terrassejardin

Nos partenaires locaux
Découvrez cette somptueuse maison d'architecte exposée Sud avec jardin de 150m2 environ, située dans un quartier Pavillonnaire du Plessis-Robinson offrant un cadre de vie exceptionnel.
Vous profiterez des écoles (Ecole primaire Jean Jaurès à 150m, Collège Romain Rolland à 1,8km, Etablissements Marie Curie et Lakanal à 10 minutes de voiture), des commerces (boulangerie à 400m), et d'espaces verts (Bois de la Garenne à 500m).
La maison a été entièrement rénovée par architecte, avec des matériaux durables et de très bonne qualité (DPE C).
Deux places de stationnement (garage de 28,2 m2).

Transports : tramway T6 à 700m (Soleil Levant) - RER B (Robison RER) à 10 minutes (bus 14).

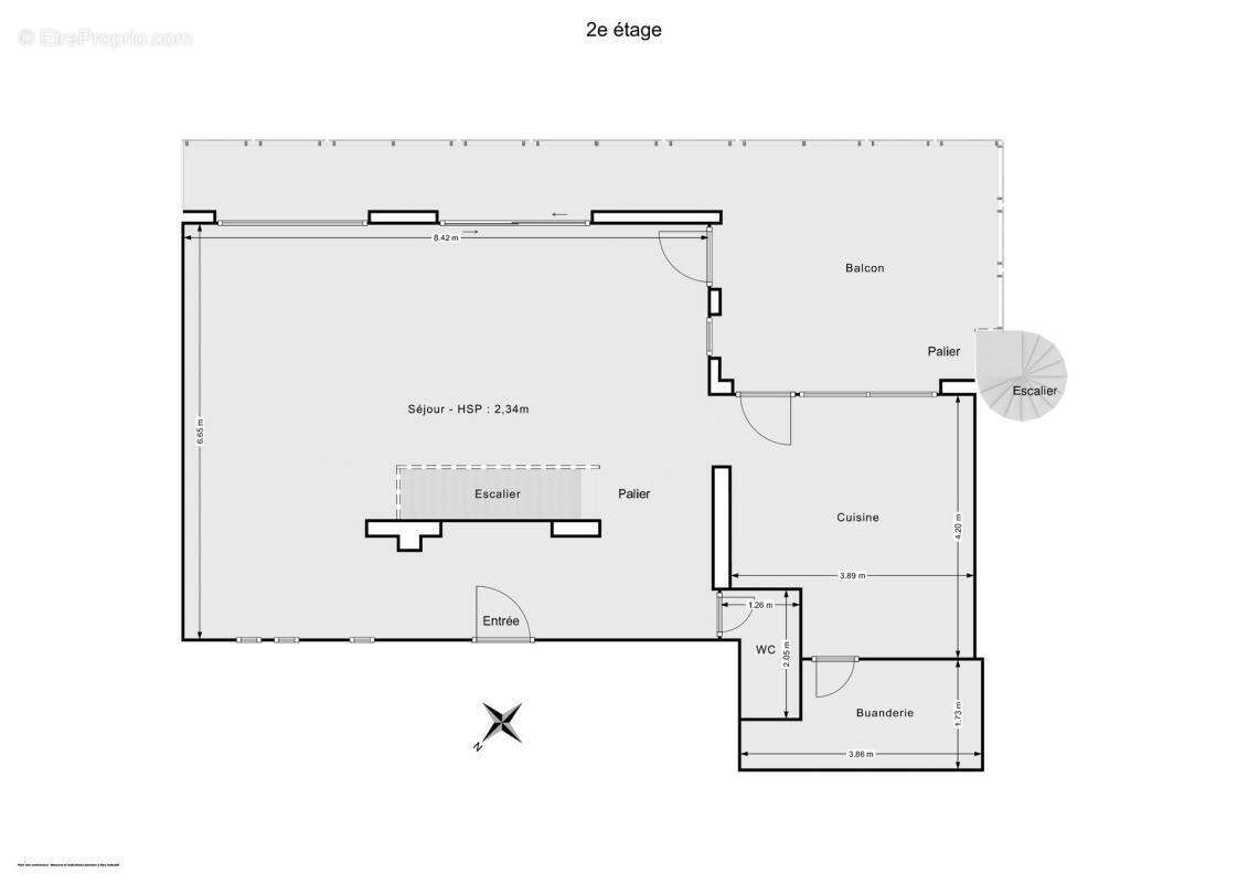
Au deuxième étage, vous serez séduits par le vaste séjour de 53m2 baigné de lumière, donnant sur une première terrasse de 18m2. Au même étage, une grande cuisine de 15m2 donnant également sur l'extérieur, buanderie de 5,3m2 attenante.

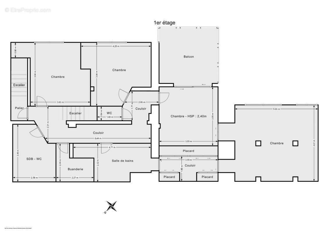
Au 1er étage, l'espace nuit se compose comme suit :
- 4 chambres
Chambre 1 : Suite parentale de 41m2 donnant sur une terrasse de 18m2
Chambre 2 : 13,3m2
Chambre 3 : 13,1m2
Chambre 4 : 12,41m2 (aujourd'hui en bureau)
- 2 salles de bains
- Buanderie

Au rez de jardin :
- Séjour de 17,33m2
- Cuisine de 11m2
- Chambre 5 : 9,06m2
(Possibilité de créer deux nouvelles chambres à la place du séjour et de la cuisine).
- Terrasse de 18m2
- Atelier de 22m2

Prestations :
Chaudière hybride gaz/ électricité récente
Terrain piscinable
Stores à système domotique

N'hésitez pas à m'appeler au [Coordonnées masquées] pour planifier une visite !
Voir plus

Référence: 16d740
Honoraires à la charge du vendeur.
DPE
A
B
C
D
E
F
G

Prêt immobilier

Vous souhaitez connaître votre capacité d’emprunt et trouver le meilleur crédit immobilier ?
Réaliser une simulation gratuite

Maison à LE PLESSIS-ROBINSON
Maison à LE PLESSIS-ROBINSON
Maison à LE PLESSIS-ROBINSON
Maison à LE PLESSIS-ROBINSON
Maison à LE PLESSIS-ROBINSON
Maison à LE PLESSIS-ROBINSON
Maison à LE PLESSIS-ROBINSON
Maison à LE PLESSIS-ROBINSON
Maison à LE PLESSIS-ROBINSON
Maison à LE PLESSIS-ROBINSON
Maison à LE PLESSIS-ROBINSON
Maison à LE PLESSIS-ROBINSON
Maison à LE PLESSIS-ROBINSON
Maison à LE PLESSIS-ROBINSON
Maison à LE PLESSIS-ROBINSON
Maison à LE PLESSIS-ROBINSON
Maison à LE PLESSIS-ROBINSON
Maison à LE PLESSIS-ROBINSON
Maison à LE PLESSIS-ROBINSON
Maison à LE PLESSIS-ROBINSON
Ce site est protégé par reCAPTCHA la Politique de confidentialité et les Conditions d’utilisation de Google s’appliquent.
Obtenir un prêt immobilier au meilleur taux ?

En poursuivant votre navigation sans modifier vos paramètres, vous acceptez l'utilisation de cookies susceptibles de réaliser des statistiques de visite. Cliquez ici pour plus d'informations