Bénéficiez des services de nos partenaires locaux soigneusement sélectionnés
pour vous accompagner dans votre parcours d'achat immobilier

Maison albertville 9 pièces 227 m2

— Albertville 73200 —
290 000 €
227 m² / 851 m²
9 pièces
parkingjardin

Nos partenaires locaux
Savoie 73200 Albertville Maison 6 chambres, jardin et garage 290 000 euros.
Exclusivité au sein d'un secteur résidentiel serein, à proximité des établissements scolaires, des commerces divers et de la gare, cette maison de 227 m² lovée sur son terrain de 851 m², offre de beaux volumes et un agencement fonctionnel, parfait pour une famille en quête de confort et de praticité.
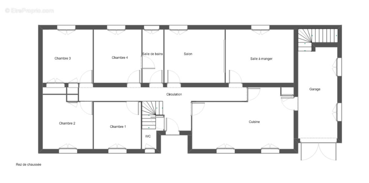
Un rez-de-chaussée pensé pour assurer votre confort, grâce à ses espaces généreux. Son salon séjour de 30 m² chaleureux et accueillant et parfait pour tisser des moments en famille. Tandis que la cuisine spacieuse de 23 m², se profile comme un lieu idéal pour concocter et partager vos festins. Avec ces quatre chambres, cette maison offre tout le bonheur d'une vie de plain-pied, sans oublier une salle de bain dotée d'une double vasque ainsi qu'un WC séparé.
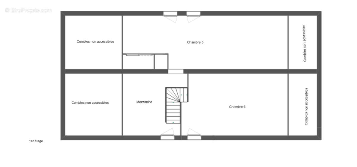
L'étage se compose d'une pièce palière pouvant être aménagé en bureau, espace de détente... Deux chambres spacieuses supplémentaires parfaites pour les enfants ou les invités.
La maison dispose également d'un garage de 21 m², d'un sous-sol avec chaufferie, cave de 17 m², offrant de nombreux espaces de rangement et d'un jardin qui promet de belles journées ensoleillées et des instants de détente en extérieur.
Cette maison est le lieu idéal pour une famille souhaitant concilier confort, espace et praticité. Et pourquoi ne pas envisager l'aménagement d'un studio indépendant ? Une opportunité idéale pour allier confort familial et rendement locatif.
CLASSE ENERGIE : E CLASSE CLIMAT : D
Montant moyen estimé des dépenses annuelles d'énergie pour un usage standard, établi à partir des prix de l'énergie de l'année 2021, 2022, 2023 abonnement compris : entre 3660 euros et 4610 euros par an.
Les informations sur les risques auxquels ce bien est exposé sont disponibles sur le site Géorisques : www.georisques.gouv.fr
Prix de vente : 290 000 euros (honoraires à la charge des vendeurs)
Pour visiter et vous accompagner dans votre projet, contactez Maïmouna LY, votre conseillère en immobilier spécialiste d'Ugine et alentours au [Coordonnées masquées] ou par courriel à [Coordonnées masquées]
Cette présente annonce a été rédigée sous la responsabilité éditoriale de Maïmouna LY agissant sous le statut d'agent commercial immatriculé au RSAC CHAMBERY 839110053 auprès de la SAS PROPRIETES PRIVEES, Réseau national immobilier, au capital de 40000 euros, 44 ALLÉE DES CINQ CONTINENTS - ZAC LE CHÊNE FERRÉ, 44120 VERTOU, RCS Nantes n° 487 624 777 00040, Carte professionnelle T et G n° CPI 44[Coordonnées masquées]10 388 CCI Nantes-Saint Nazaire. Garantie GALIAN - 89 rue de la Boétie, 75008 Paris
Mandat réf 419 607 Le professionnel sécurise votre projet immobilier
Maïmouna LY (EI) Agent Commercial - Numéro RSAC : CHAMBERY 839110053 -

Maïmouna LY (EI) Agent Commercial - Numéro RSAC : CHAMBERY 839110053 - .
Voir plus

Référence: 419607MLY
Honoraires à la charge du vendeur.
DPE
A
B
C
D
E
F
G
GES
A
B
C
D
E
F
G

Prêt immobilier

Vous souhaitez connaître votre capacité d’emprunt et trouver le meilleur crédit immobilier ?
Réaliser une simulation gratuite

Maison à ALBERTVILLE
Maison à ALBERTVILLE
Maison à ALBERTVILLE
Maison à ALBERTVILLE
Maison à ALBERTVILLE
Maison à ALBERTVILLE
Maison à ALBERTVILLE
Maison à ALBERTVILLE
Maison à ALBERTVILLE
Maison à ALBERTVILLE
Maison à ALBERTVILLE
Maison à ALBERTVILLE
Maison à ALBERTVILLE
Maison à ALBERTVILLE
Ce site est protégé par reCAPTCHA la Politique de confidentialité et les Conditions d’utilisation de Google s’appliquent.
Obtenir un prêt immobilier au meilleur taux ?

En poursuivant votre navigation sans modifier vos paramètres, vous acceptez l'utilisation de cookies susceptibles de réaliser des statistiques de visite. Cliquez ici pour plus d'informations