Appartement 4 pièces duplex avec loggia

— Carrieres-Sous-Poissy 78955 —
295 000 €
83 m²
4 pièces
parkingbalcon/terrasse

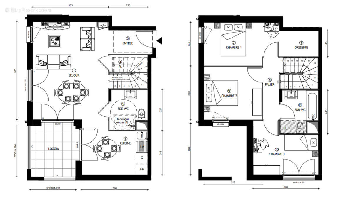
Situé dans un immeuble de standing, cet appartement en duplex offre un cadre de vie confortable et fonctionnel.
Au premier niveau, une entrée dessert un séjour lumineux et une cuisine fonctionnelle, tous deux ouverts sur une agréable loggia. Une salle d’eau avec WC complète cet espace de vie.
À l’étage, vous trouverez trois chambres, dont une avec dressing, ainsi qu’une salle de bains.
Ce bien bénéficie d’un emplacement privilégié, à proximité immédiate des bus, des écoles et des commerces, offrant praticité et confort au quotidien.
Voir plus

Référence: 472
Bien en copropriété.
Honoraires à la charge du vendeur.
Barème des honoraires
DPE
A
B
C
D
E
F
G
GES
A
B
C
D
E
F
G

Prêt immobilier

Vous souhaitez connaître votre capacité d’emprunt et trouver le meilleur crédit immobilier ?
Réaliser une simulation gratuite

Appartement à CARRIERES-SOUS-POISSY
Appartement à CARRIERES-SOUS-POISSY
Appartement à CARRIERES-SOUS-POISSY
Appartement à CARRIERES-SOUS-POISSY
Appartement à CARRIERES-SOUS-POISSY
Appartement à CARRIERES-SOUS-POISSY
Appartement à CARRIERES-SOUS-POISSY
Appartement à CARRIERES-SOUS-POISSY
Ce site est protégé par reCAPTCHA la Politique de confidentialité et les Conditions d’utilisation de Google s’appliquent.
Obtenir un prêt immobilier au meilleur taux ?

En poursuivant votre navigation sans modifier vos paramètres, vous acceptez l'utilisation de cookies susceptibles de réaliser des statistiques de visite. Cliquez ici pour plus d'informations