Bénéficiez des services de nos partenaires locaux soigneusement sélectionnés
pour vous accompagner dans votre parcours d'achat immobilier

À vendre : murs commerciaux emplacement premium à sanary

— Sanary-Sur-Mer 83110 —
495 000 €
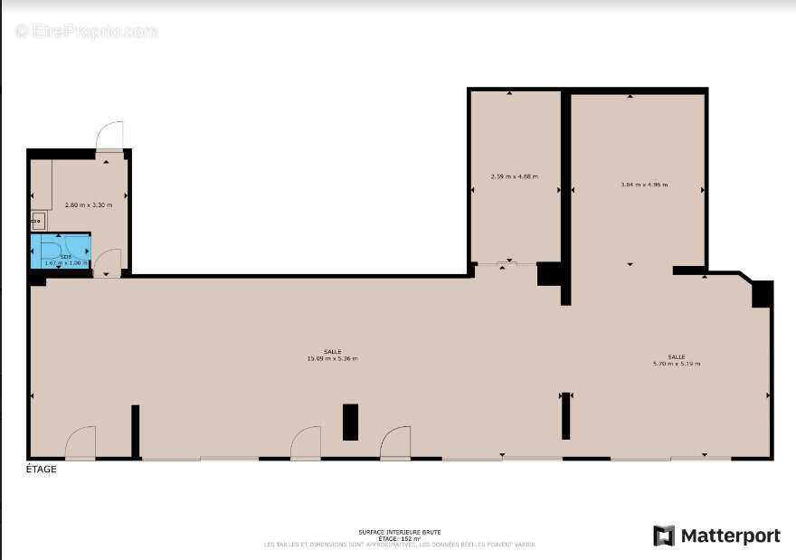
146 m²

Nos partenaires locaux
Opportunité rare !
Ces murs commerciaux, idéalement situés sur un axe passant à quelques pas du centre de Sanary, offrent une visibilité exceptionnelle et un fort potentiel pour votre activité ou investissement.
Caractéristiques principales :
• Surface : 150 m2 exploitables, modulables selon vos besoins.
• Divisibilité : Possibilité de créer jusqu’à trois lots distincts, idéale pour une location multiple ou une diversification d’activités.
• Emplacement : Zone stratégique à fort passage, assurant un flux constant de clients, tout en restant proche des commerces et services du centre-ville.
Que ce soit pour implanter votre activité ou investir dans un bien à forte rentabilité locative, ces locaux sont une opportunité à ne pas manquer.
Contactez-nous dès aujourd’hui pour plus d’informations ou pour organiser une visite !
Voir plus

Référence: 7687
Barème des honoraires
DPE
A
B
C
D
E
F
G
GES
A
B
C
D
E
F
G

Prêt immobilier

Vous souhaitez connaître votre capacité d’emprunt et trouver le meilleur crédit immobilier ?
Réaliser une simulation gratuite

Commerce à SANARY-SUR-MER
Commerce à SANARY-SUR-MER
Commerce à SANARY-SUR-MER
Commerce à SANARY-SUR-MER
Commerce à SANARY-SUR-MER
Commerce à SANARY-SUR-MER
Commerce à SANARY-SUR-MER
Ce site est protégé par reCAPTCHA la Politique de confidentialité et les Conditions d’utilisation de Google s’appliquent.
Obtenir un prêt immobilier au meilleur taux ?

En poursuivant votre navigation sans modifier vos paramètres, vous acceptez l'utilisation de cookies susceptibles de réaliser des statistiques de visite. Cliquez ici pour plus d'informations