Bénéficiez des services de nos partenaires locaux soigneusement sélectionnés
pour vous accompagner dans votre parcours d'achat immobilier

Faites de votre projet immobilier une double opportunité

— Maubeuge 59600 —
60 000 €
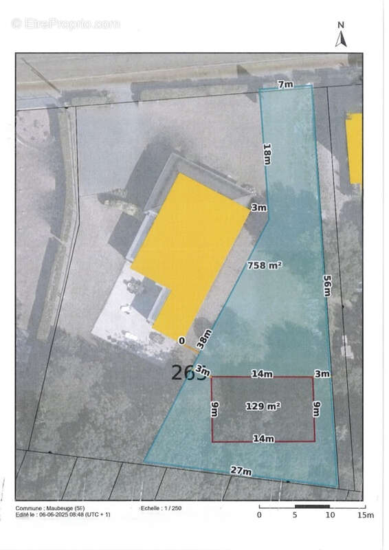
758 m²
jardin

Nos partenaires locaux
TIGRE IMMOBILIER vous propose en exclusivité ce terrain à bâtir de 758 m2, idéalement situé à proximité des axes principaux et de toutes les commodités.
Implanté en second écran, il vous garantit tranquillité et intimité.
Petit plus non négligeable : un panneau publicitaire installé à l’entrée du terrain, parfaitement intégré et sans nuisance visuelle, vous assure un revenu complémentaire régulier. Une opportunité rare d’allier projet immobilier et rentabilité !
Pour tout renseignement, contactez dès maintenant votre conseillère en immobilier, Stéphanie LOCOCCIOLO, au [Coordonnées masquées].
Les informations sur les risques auxquels ce bien est exposé sont disponibles sur le site Géorisques : www.georisques.gouv.fr TIGRE IMMOBILIER MAUBEUGE JEUMONT www.tigre-immobilier.fr - [Coordonnées masquées] ou [Coordonnées masquées]
Voir plus

Référence: 9254
Honoraires d'agence de 20% à la charge de l'acquéreur
Barème des honoraires

Prêt immobilier

Vous souhaitez connaître votre capacité d’emprunt et trouver le meilleur crédit immobilier ?
Réaliser une simulation gratuite

Terrain à MAUBEUGE
Terrain à MAUBEUGE
Terrain à MAUBEUGE
Terrain à MAUBEUGE
Terrain à MAUBEUGE
Terrain à MAUBEUGE
Terrain à MAUBEUGE
Ce site est protégé par reCAPTCHA la Politique de confidentialité et les Conditions d’utilisation de Google s’appliquent.
Obtenir un prêt immobilier au meilleur taux ?

En poursuivant votre navigation sans modifier vos paramètres, vous acceptez l'utilisation de cookies susceptibles de réaliser des statistiques de visite. Cliquez ici pour plus d'informations