Bénéficiez des services de nos partenaires locaux soigneusement sélectionnés
pour vous accompagner dans votre parcours d'achat immobilier

Village très recherché

— La Longueville 59570 —
38 456 €
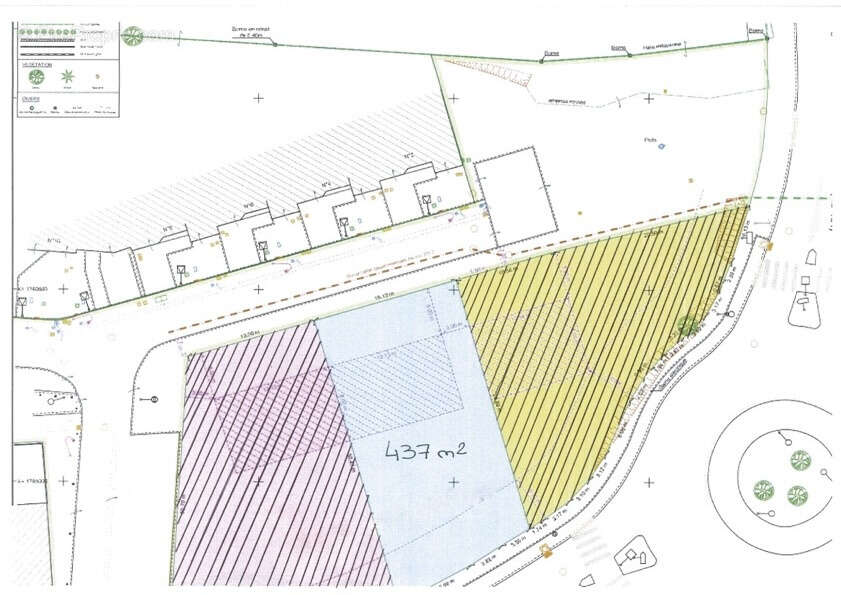
437 m²
jardin

Nos partenaires locaux
TIGRE IMMOBILIER vous présente une opportunité à saisir dans le Bavaisis !
Située dans un environnement paisible et recherché, cette parcelle de 437 m2 dispose d’une façade généreuse de 15,13 m, idéale pour concevoir une maison adaptée à vos envies.
Non viabilisé mais facilement raccordable, ce terrain offre de belles perspectives pour concrétiser votre projet de construction dans un cadre agréable.
Pour plus d’informations, contactez dès aujourd’hui votre conseillère en immobilier, Stéphanie LOCOCCIOLO, au [Coordonnées masquées].
Les informations sur les risques auxquels ce bien est exposé sont disponibles sur le site Géorisques : www.georisques.gouv.fr
TIGRE IMMOBILIER MAUBEUGE JEUMONT www.tigre-immobilier.fr - [Coordonnées masquées] ou [Coordonnées masquées]
Voir plus

Référence: 9252
Honoraires d'agence de 10% à la charge de l'acquéreur
Barème des honoraires

Prêt immobilier

Vous souhaitez connaître votre capacité d’emprunt et trouver le meilleur crédit immobilier ?
Réaliser une simulation gratuite

Terrain à LA LONGUEVILLE
Terrain à LA LONGUEVILLE
Terrain à LA LONGUEVILLE
Terrain à LA LONGUEVILLE
Terrain à LA LONGUEVILLE
Terrain à LA LONGUEVILLE
Terrain à LA LONGUEVILLE
Ce site est protégé par reCAPTCHA la Politique de confidentialité et les Conditions d’utilisation de Google s’appliquent.
Obtenir un prêt immobilier au meilleur taux ?

En poursuivant votre navigation sans modifier vos paramètres, vous acceptez l'utilisation de cookies susceptibles de réaliser des statistiques de visite. Cliquez ici pour plus d'informations