Bénéficiez des services de nos partenaires locaux soigneusement sélectionnés
pour vous accompagner dans votre parcours d'achat immobilier

À 5 minutes de bavay

— La Longueville 59570 —
42 856 €
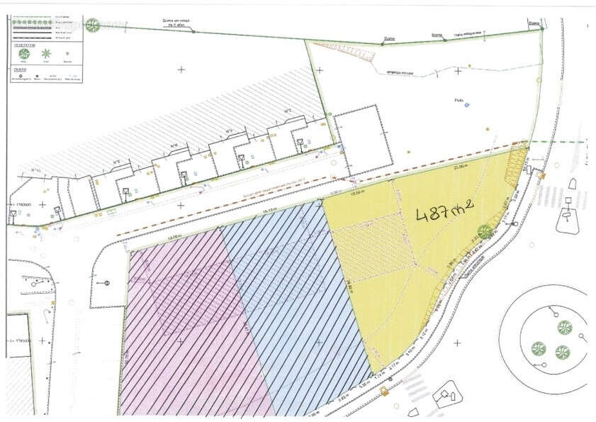
487 m²
jardin

Nos partenaires locaux
À découvrir avec TIGRE IMMOBILIER : un terrain constructible au cœur du Bavaisis !
D’une superficie de 487 m2, cette parcelle séduit par sa configuration fonctionnelle et sa façade de 10,58 m, idéale pour implanter votre future habitation.
Situé dans un secteur très prisé, ce terrain non viabilisé reste aisément raccordable, vous permettant de concrétiser votre projet immobilier en toute simplicité.Pour tout complément d’information, n’hésitez pas à contacter votre conseillère en immobilier, Stéphanie LOCOCCIOLO, au [Coordonnées masquées].
Les informations sur les risques auxquels ce bien est exposé sont disponibles sur le site Géorisques : www.georisques.gouv.fr TIGRE IMMOBILIER MAUBEUGE JEUMONT www.tigre-immobilier.fr - [Coordonnées masquées] ou [Coordonnées masquées]
Voir plus

Référence: 9253
Honoraires d'agence de 10% à la charge de l'acquéreur
Barème des honoraires

Prêt immobilier

Vous souhaitez connaître votre capacité d’emprunt et trouver le meilleur crédit immobilier ?
Réaliser une simulation gratuite

Terrain à LA LONGUEVILLE
Terrain à LA LONGUEVILLE
Terrain à LA LONGUEVILLE
Terrain à LA LONGUEVILLE
Terrain à LA LONGUEVILLE
Terrain à LA LONGUEVILLE
Terrain à LA LONGUEVILLE
Ce site est protégé par reCAPTCHA la Politique de confidentialité et les Conditions d’utilisation de Google s’appliquent.
Obtenir un prêt immobilier au meilleur taux ?

En poursuivant votre navigation sans modifier vos paramètres, vous acceptez l'utilisation de cookies susceptibles de réaliser des statistiques de visite. Cliquez ici pour plus d'informations