Bénéficiez des services de nos partenaires locaux soigneusement sélectionnés
pour vous accompagner dans votre parcours d'achat immobilier

A vendre brest kerbonne maison t5 3 chambres plain pied hangar jardin

— Brest 29200 —
293 270 €
90 m² / 590 m²
5 pièces
jardin

Nos partenaires locaux
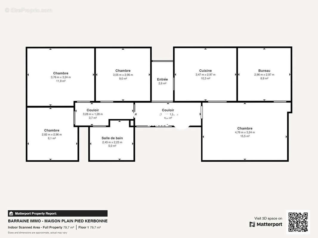
A VENDRE BREST KERBONNE. Réf : PZ00187-ZR Barraine IMMO - vous propose cette maison de plain-pied, une rare opportunité dans le secteur très recherché de Kerbonne à Brest. Idéalement située, cette maison offre un accès immédiat aux écoles, commerces et transports, garantissant un cadre de vie pratique et agréable. Ce bien de plain-pied d'environ 90m², parfait pour toutes les générations, se compose d'une entrée, d'un salon, d'un séjour, d'une cuisine indépendante spacieuse, de trois chambres, d'une salle d'eau et d'un cellier. Elle est dotée d'équipements récents et d'atouts supplémentaires : une chaudière au gaz neuve, un ravalement récent, ainsi que des huisseries en bois avec double vitrage pour un confort optimal. Un hangar de près de 150 m² situé sur la parcelle ouvre de multiples possibilités, qu'il s'agisse d'un atelier, d'un grand garage ou d'un espace de stockage. Le tout repose sur un terrain d'environ 600 m², idéal pour aménager un bel espace extérieur. Quelques travaux de rafraîchissement permettront de personnaliser cette maison et de révéler tout son potentiel. Contactez l'Agence Barraine IMMO - Plouzané dès maintenant pour organiser une visite ou obtenir plus d'informations. (4.74 % honoraires TTC à la charge de l'acquéreur.)
Voir plus

Référence: PZ00187-ZR
Honoraires d'agence de 4.74% à la charge de l'acquéreur
Barème des honoraires
DPE
A
B
C
D
E
F
G
GES
A
B
C
D
E
F
G

Prêt immobilier

Vous souhaitez connaître votre capacité d’emprunt et trouver le meilleur crédit immobilier ?
Réaliser une simulation gratuite

Maison à BREST
Maison à BREST
Maison à BREST
Maison à BREST
Maison à BREST
Maison à BREST
Maison à BREST
Maison à BREST
Maison à BREST
Maison à BREST
Maison à BREST
Maison à BREST
Maison à BREST
Maison à BREST
Maison à BREST
Maison à BREST
Maison à BREST
Maison à BREST
Maison à BREST
Maison à BREST
Ce site est protégé par reCAPTCHA la Politique de confidentialité et les Conditions d’utilisation de Google s’appliquent.
Obtenir un prêt immobilier au meilleur taux ?

En poursuivant votre navigation sans modifier vos paramètres, vous acceptez l'utilisation de cookies susceptibles de réaliser des statistiques de visite. Cliquez ici pour plus d'informations