Bénéficiez des services de nos partenaires locaux soigneusement sélectionnés
pour vous accompagner dans votre parcours d'achat immobilier

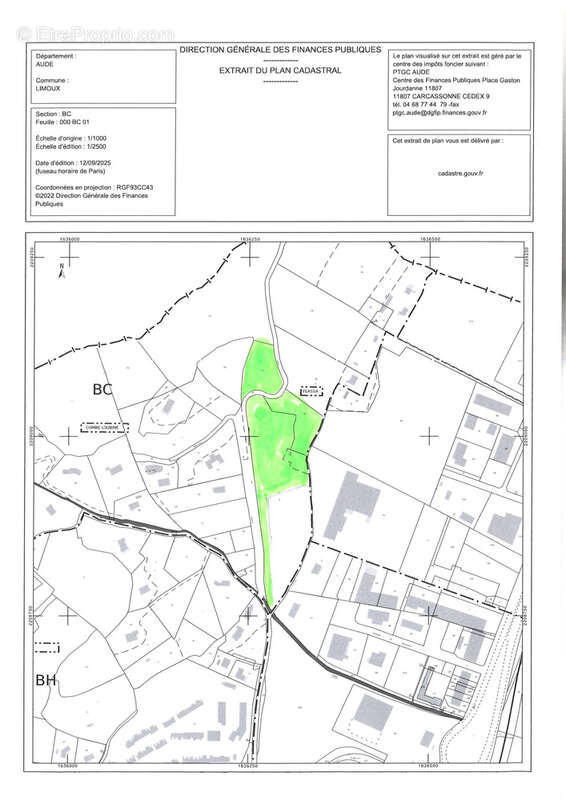
Limoux - terrain à bâtir non viabilisé d'environ 8 095m2

— Limoux 11300 —
88 000 €
8 095 m²
jardin

Nos partenaires locaux
Terrain à bâtir non viabilisé d’environ 8 095 m2, accompagné d’une parcelle attenante non constructible de 3 045 m2 ainsi qu’une seconde parcelle non attenante de 3 242 m2.
Déclaration préalable déjà obtenue.

Référence: 9235
Honoraires d'agence de 10% à la charge de l'acquéreur
Barème des honoraires

Prêt immobilier

Vous souhaitez connaître votre capacité d’emprunt et trouver le meilleur crédit immobilier ?
Réaliser une simulation gratuite

Terrain à LIMOUX
Terrain à LIMOUX
Terrain à LIMOUX
Terrain à LIMOUX
Ce site est protégé par reCAPTCHA la Politique de confidentialité et les Conditions d’utilisation de Google s’appliquent.
Obtenir un prêt immobilier au meilleur taux ?

En poursuivant votre navigation sans modifier vos paramètres, vous acceptez l'utilisation de cookies susceptibles de réaliser des statistiques de visite. Cliquez ici pour plus d'informations