Bénéficiez des services de nos partenaires locaux soigneusement sélectionnés
pour vous accompagner dans votre parcours d'achat immobilier

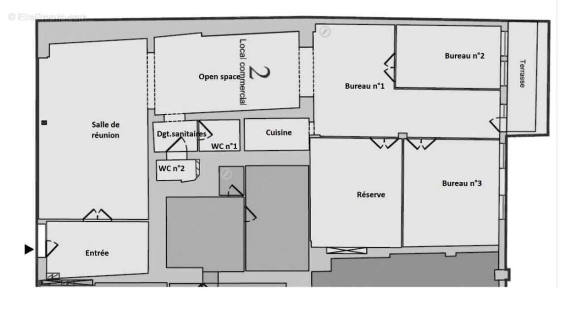
Commerce 202m² à floirac

— Floirac 33270 —
399 000 €
202 m²
8 pièces

Nos partenaires locaux
Local Commercial Exceptionnel à Louer - 202 m² de Potentiel

Découvrez ce local commercial lumineux et spacieux de 202 m², idéal pour votre entreprise en plein essor. Situé au rez-de-chaussée, ce bien offre une vitrine de 15 mètres de linéaire, attirant ainsi une clientèle nombreuse et variée.

Imaginez votre activité prospérer dans cet espace commercial bien conçu, avec des réserves de 24 m² pour un rangement optimal. Une surface extérieure de 11 m² complète ce bien, offrant un espace supplémentaire pour accueillir vos clients ou stocker vos marchandises.

Ce local commercial est situé dans un quartier dynamique, à seulement 5 minutes à pied des transports en commun, avec plusieurs bus à proximité.
À proximité, vous trouverez plusieurs commodités essentielles pour votre quotidien : une crèche, une maternelle, une école élémentaire, des collèges, des restaurants, des parcs et jardins, et des médecins généralistes. De plus, plusieurs commerces d'alimentation générale sont accessibles à pied en quelques minutes.

- Prix HT : 400 000€
- Prix TTC : 480 850€

Ne manquez pas cette opportunité unique de donner un nouvel élan à votre entreprise dans un local commercial bien situé et bien équipé. Contactez-nous dès maintenant pour une visite et laissez-vous séduire par ce bien exceptionnel.

Honoraires à la charge du vendeur. Dans une copropriété de 6 lots. Aucune procédure n'est en cours. DPE vierge. Les informations sur les risques auxquels ce bien est exposé sont disponibles sur le site Géorisques : georisques.gouv.fr.

Votre conseiller RH Patrimoine : Marc VEYRET
Agent commercial (Entreprise individuelle)
Voir plus

Référence: VP094-RHPATRI
Bien en copropriété. Nombre de lots : 6.
Honoraires à la charge du vendeur.
Barème des honoraires

Prêt immobilier

Vous souhaitez connaître votre capacité d’emprunt et trouver le meilleur crédit immobilier ?
Réaliser une simulation gratuite

Commerce à FLOIRAC
Commerce à FLOIRAC
Commerce à FLOIRAC
Commerce à FLOIRAC
Commerce à FLOIRAC
Commerce à FLOIRAC
Ce site est protégé par reCAPTCHA la Politique de confidentialité et les Conditions d’utilisation de Google s’appliquent.
Obtenir un prêt immobilier au meilleur taux ?

En poursuivant votre navigation sans modifier vos paramètres, vous acceptez l'utilisation de cookies susceptibles de réaliser des statistiques de visite. Cliquez ici pour plus d'informations