Bénéficiez des services de nos partenaires locaux soigneusement sélectionnés
pour vous accompagner dans votre parcours d'achat immobilier

Asnières – quartier des quais de seine – t3 de 69,69 m² avec balcon, cave & parking

— Asnieres-Sur-Seine 92600 —
400 000 €
69 m²
3 pièces
parkingbalcon/terrasse

Nos partenaires locaux
Adresse recherchée Étage élevé avec ascenseur Exposition plein Sud À 5 min du RER C Les Grésillons
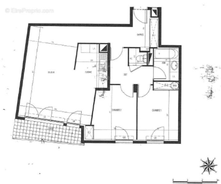
Dans le quartier dynamique et en plein essor des Nouveaux Quais de Seine à Asnières-sur-Seine, découvrez ce bel appartement 3 pièces de 69,69 m², situé au 4e étage d'un immeuble moderne (2010) avec ascenseur.
Une distribution idéale :
• Entrée avec placard, desservant l'ensemble des pièces
• Séjour lumineux de 24,82 m² prolongé par un balcon couvert de 5,81 m², orienté plein Sud
• Cuisine ouverte de 6,2 m², entièrement équipée, pouvant être ouverte davantage sur le séjour
• Deux chambres confortables, chacune avec placard intégré
• Salle de bains avec baignoire et sèche-serviettes
• WC séparés
Prestations complémentaires :
• Cave en sous-sol
• Place de parking souterraine
• Chauffage individuel électrique
• DPE : C
Cadre de vie agréable :
Dans un quartier résidentiel récent (environ 15 ans), offrant :
• Des commerces de proximité (Franprix, boulangerie, caviste, magasin bio, marché)
• Des espaces verts, dont le Parc Marguerite Yourcenar
• Une école primaire à proximité
• Le RER C – Les Grésillons à seulement quelques minutes à pied, facilitant vos déplacements vers Paris

Une belle opportunité à découvrir rapidement ! Idéal pour un couple, une petite famille ou un investissement locatif de qualité.
Voir plus

Référence: JEA-Asnieres
Honoraires à la charge du vendeur.
DPE
A
B
C
D
E
F
G
GES
A
B
C
D
E
F
G

Prêt immobilier

Vous souhaitez connaître votre capacité d’emprunt et trouver le meilleur crédit immobilier ?
Réaliser une simulation gratuite

Appartement à ASNIERES-SUR-SEINE
Appartement à ASNIERES-SUR-SEINE
Appartement à ASNIERES-SUR-SEINE
Appartement à ASNIERES-SUR-SEINE
Appartement à ASNIERES-SUR-SEINE
Appartement à ASNIERES-SUR-SEINE
Appartement à ASNIERES-SUR-SEINE
Appartement à ASNIERES-SUR-SEINE
Appartement à ASNIERES-SUR-SEINE
Appartement à ASNIERES-SUR-SEINE
Appartement à ASNIERES-SUR-SEINE
Appartement à ASNIERES-SUR-SEINE
Appartement à ASNIERES-SUR-SEINE
Ce site est protégé par reCAPTCHA la Politique de confidentialité et les Conditions d’utilisation de Google s’appliquent.
Obtenir un prêt immobilier au meilleur taux ?

En poursuivant votre navigation sans modifier vos paramètres, vous acceptez l'utilisation de cookies susceptibles de réaliser des statistiques de visite. Cliquez ici pour plus d'informations