Bénéficiez des services de nos partenaires locaux soigneusement sélectionnés
pour vous accompagner dans votre parcours d'achat immobilier

Bordeaux saint augustin type 4 de 97 m2 a renover + parking et cave

— Bordeaux 33200 —
249 000 €
97 m²
4 pièces
parkingbalcon/terrasse

Nos partenaires locaux
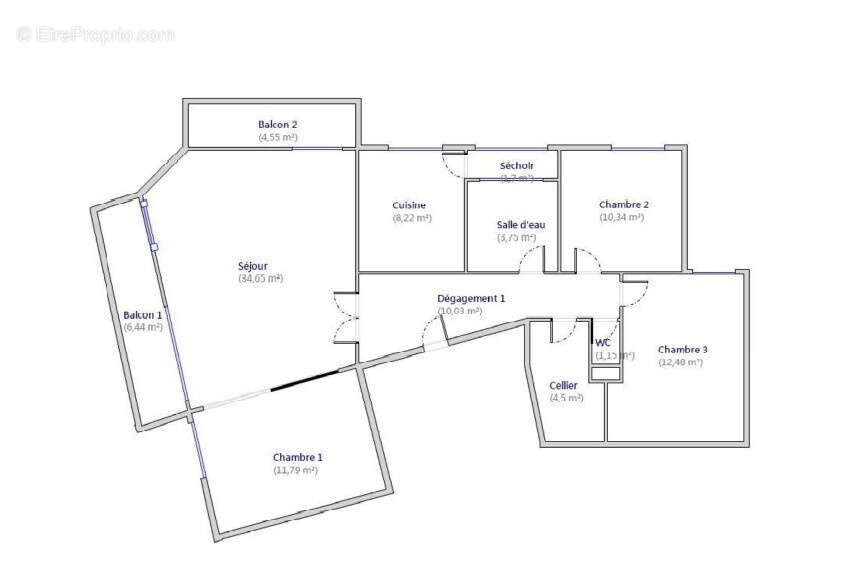
BORDEAUX SAINT AUGUSTIN T4 DE 97 M2 A RENOVER + PARKING ET CAVE.
Superbe t4 de 97 m2 à rénover entièrement dans une petite résidence de 4 appartements avec ascenseur. Deux balcons, une place de parking intérieure et une grande cave de 10 m2 complètent ce bien.
Les commerces de saint augustin sont à 600 m, le tram A et l'hopital Pellegrin à 1 km. Son séjour de 35 m2 donnant sur ses deux balcons avec double exposition sud et ouest vous apportera espace et clareté. 3 belles chambres, une salle d'eau et un WC séparé. La praticité du séchoir, du cellier et des placards dans l'appartement ne vous échaperont pas.
Vous pourrez laisser votre imagination transformer cet appartement en un lieu de vie à votre image.
Petite copropriété de 11 lots mais de seulement 4 appartements. Charges annuelles 2164 € (180 € / mois eau comprise).
Annonce rédigée par Pierre GAVARD E.I. enregistré au RSAC de Bordeaux sous le no419601562.
Cette annonce vous est proposée par BLANC-LE ROUX Océane - - NoRSAC: 905 252 029, Enregistré au Greffe du tribunal de commerce de BORDEAUX
Voir plus

Référence: 866
Bien en copropriété. Nombre de lots : 4. Charges de copropriété : 2164 €.
Honoraires d'agence de 5.06% à la charge de l'acquéreur
Barème des honoraires
DPE
A
B
C
D
E
F
G
GES
A
B
C
D
E
F
G

Prêt immobilier

Vous souhaitez connaître votre capacité d’emprunt et trouver le meilleur crédit immobilier ?
Réaliser une simulation gratuite

Appartement à BORDEAUX
Appartement à BORDEAUX
Appartement à BORDEAUX
Appartement à BORDEAUX
Appartement à BORDEAUX
Appartement à BORDEAUX
Appartement à BORDEAUX
Appartement à BORDEAUX
Appartement à BORDEAUX
Appartement à BORDEAUX
Appartement à BORDEAUX
Appartement à BORDEAUX
Appartement à BORDEAUX
Appartement à BORDEAUX
Appartement à BORDEAUX
Ce site est protégé par reCAPTCHA la Politique de confidentialité et les Conditions d’utilisation de Google s’appliquent.
Obtenir un prêt immobilier au meilleur taux ?

En poursuivant votre navigation sans modifier vos paramètres, vous acceptez l'utilisation de cookies susceptibles de réaliser des statistiques de visite. Cliquez ici pour plus d'informations