Bénéficiez des services de nos partenaires locaux soigneusement sélectionnés
pour vous accompagner dans votre parcours d'achat immobilier

Paris10 - bonne nouvelle - bel appartement familial 93,89m²

— Paris-10e 75010 —
1 155 000 €
93 m²
4 pièces

Nos partenaires locaux
Paris 10ème - Bonne Nouvelle - Bel appartement familial de 93,89m²

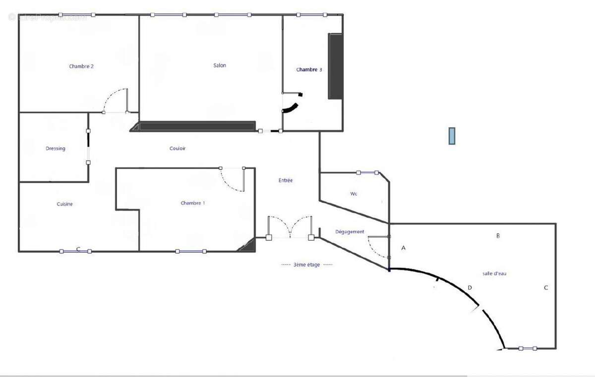
Rue d'Enghien, dans un quartier dynamique et central, bel appartement de 93,89 m² Carrez au troisième étage d'un immeuble ancien de 1800.
Ce bien dispose d'un plan en étoile traversant sur rue et cour, parfaitement distribué, permettant une belle aération et bénéficiant d'une très belle luminosité nord-est et sud-ouest.
Il se compose d'une entrée, un séjour (double-séjour possible), trois chambres, un dressing, une grande cuisine séparée (transformable en chambre), une grande salle d'eau et des toilettes séparées. Toutes les pièces possèdent leur fenêtre.
Sa configuration permet une circulation fluide entre les différentes pièces et offre de multiples possibilités d'aménagement.

Une grande cave voûtée de plus de 12m² complète ce bien. Emplacement de Parking en sus du prix.

Emplacement idéal dans une rue calme, mais situé dans le quartier dynamique et recherché de Paris 10ème à la limite du 2ème arrondissement, avec ses nombreux commerces, services, restaurants, cafés et écoles réputées, telles que Louis Blanc Élémentaire et le Collège Bernard Palissy.

A 2 minutes à pied du métro Bonne Nouvelle (M9, M8), à quelques minutes à pied du très prisé Canal Saint Martin et à proximité immédiate de la Gare du Nord, Gare de l'Est et la Gare Saint-Lazare, facilitant les déplacements en train.

Ne manquez pas cette opportunité de vivre au cœur de Paris dans un logement confortable et fonctionnel.

Bien soumis au statut de la copropriété 1/26 lots
Quote-part du budget prévisionnel annuel : 4 474€
Pas de procédure en cours.

=> PERFORMANCE ENERGETIQUE ACTUELLE : D (201 kWh/m². an) dont Emission de gaz à effet de serre D (43 kg/m². an)

Annonce présentée par Charles GAFFET au [Coordonnées masquées] (RSAC 942124454)
Voir plus

Référence: 3808_CG
Bien en copropriété. Nombre de lots : 26. Charges de copropriété : 372 €.
DPE
A
B
C
D
E
F
G
GES
A
B
C
D
E
F
G

Prêt immobilier

Vous souhaitez connaître votre capacité d’emprunt et trouver le meilleur crédit immobilier ?
Réaliser une simulation gratuite

Appartement à PARIS-10E
Appartement à PARIS-10E
Appartement à PARIS-10E
Appartement à PARIS-10E
Appartement à PARIS-10E
Appartement à PARIS-10E
Appartement à PARIS-10E
Appartement à PARIS-10E
Appartement à PARIS-10E
Appartement à PARIS-10E
Appartement à PARIS-10E
Appartement à PARIS-10E
Appartement à PARIS-10E
Appartement à PARIS-10E
Appartement à PARIS-10E
Appartement à PARIS-10E
Appartement à PARIS-10E
Appartement à PARIS-10E
Ce site est protégé par reCAPTCHA la Politique de confidentialité et les Conditions d’utilisation de Google s’appliquent.
Obtenir un prêt immobilier au meilleur taux ?

En poursuivant votre navigation sans modifier vos paramètres, vous acceptez l'utilisation de cookies susceptibles de réaliser des statistiques de visite. Cliquez ici pour plus d'informations