Appartement

— Chatillon 92320 —
800 000 €
150 m²
4 pièces

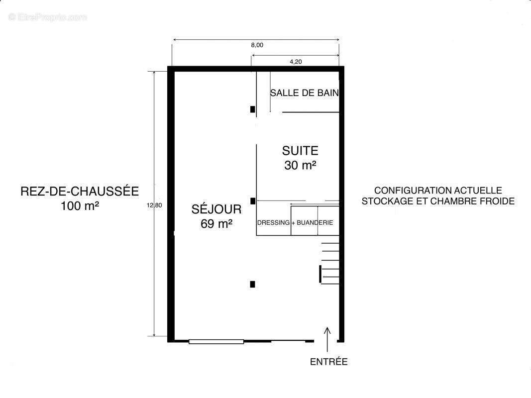
92320 - CHATILLON - MAISON LOFT - COMMERCIAL + HABITATION 167 M² - A DEUX PAS DU TRAM T6

Nicolas HENRY & effiCity, l'agence qui estime votre bien en ligne, vous propose cette magnifique maison loft de caractère située centre de Châtillon.

Idéal particuliers et ou professionnels bénéficiant d'une désignation mixte à usage commercial et habitation.
Idéalement implanté à proximité des commerces, des écoles et des transports en commun, ce bien saura vous séduire par son charme et son authenticité et sa polyvalence.
Offrant des volumes et une configuration exceptionnelle, tout à été prévu pour une implantation à la fois professionnelle et habitable. Travaux complets effectués en 2020.

Ne manquez pas l'opportunité de visiter ce bien unique à Châtillon, un véritable bijou en attente de ses nouveaux propriétaires !

Contactez-moi dès aujourd'hui pour organiser une visite et laissez-vous charmer par le potentiel de ce bien d'exception.

Toutes nos visites se déroulent dans le respect des normes sanitaires en vigueur.
Les informations sur les risques auxquels ce bien est exposé sont disponibles sur le site Georisque : georisques. gouv. fr
Nicolas Henry - EI - est Agent Commercial mandataire en immobilier, immatriculé au Registre Spécial des Agents Commerciaux du Tribunal de Commerce de Nanterre sous le n°533501664.
Siège social du mandant : effiCity, 48 avenue de Villiers - 75017 PARIS - Société par Actions Simplifiée, société au capital de 132 373,05 euros, immatriculée au RCS Paris 497 617 746 et titulaire de la Carte professionnelle CPI 75[Coordonnées masquées]02 025 - CCI Paris IDF - Caisse de Garantie : GALIAN Assurances 89 rue de la Boétie 75008 Paris
Voir plus

Référence: 193392
Honoraires à la charge du vendeur.
Barème des honoraires
DPE
A
B
C
D
E
F
G
GES
A
B
C
D
E
F
G

Prêt immobilier

Vous souhaitez connaître votre capacité d’emprunt et trouver le meilleur crédit immobilier ?
Réaliser une simulation gratuite

Appartement à CHATILLON
Appartement à CHATILLON
Appartement à CHATILLON
Appartement à CHATILLON
Appartement à CHATILLON
Appartement à CHATILLON
Appartement à CHATILLON
Appartement à CHATILLON
Appartement à CHATILLON
Appartement à CHATILLON
Appartement à CHATILLON
Appartement à CHATILLON
Appartement à CHATILLON
Appartement à CHATILLON
Appartement à CHATILLON
Appartement à CHATILLON
Appartement à CHATILLON
Ce site est protégé par reCAPTCHA la Politique de confidentialité et les Conditions d’utilisation de Google s’appliquent.
Obtenir un prêt immobilier au meilleur taux ?

En poursuivant votre navigation sans modifier vos paramètres, vous acceptez l'utilisation de cookies susceptibles de réaliser des statistiques de visite. Cliquez ici pour plus d'informations