Bénéficiez des services de nos partenaires locaux soigneusement sélectionnés
pour vous accompagner dans votre parcours d'achat immobilier

Colomiers – habitation + activité pro possible maison 175 m2 avec jardin et double accès,

— Colomiers 31770 —
415 000 €
175 m² / 750 m²
7 pièces
parkingbalcon/terrassejardinpiscine

Nos partenaires locaux
Colomiers – Maison modulable avec jardin et double accès – Usage mixte idéal
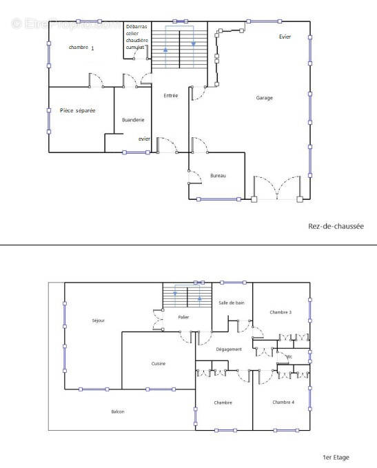
À quelques minutes à pied du centre-ville, des commodités et de la future ligne de métro, cette maison traditionnelle de 175 m2 sur un terrain arboré de 757 m2 offre une configuration flexible pour un projet mixte habitation et activité professionnelle.

Située dans une impasse calme, avec deux portails indépendants pour véhicules, et un grand garage, elle comprend un espace lumineux avec à l'étage un séjour, cuisine, 3 chambres, salle de bain et terrasse, ainsi qu’un rez-de-chaussée modulable avec plusieurs pièces, buanderie et bureau accessible indépendamment.

La proximité immédiate de la rocade ne nuit pas au confort intérieur grâce à une isolation performante et un double vitrage de qualité. Le jardin, intime et sans vis-à-vis, complète ce bien polyvalent.

Idéale pour habitation principale, professions libérales, activités artisanales, paramédicales, petite enfance ou indépendants cherchant à allier vie privée et activité professionnelle.

Quartier en pleine transformation, au cœur d’un bassin résidentiel en développement.

contactez Catherine Pou au [Coordonnées masquées] pour en savoir plus et convenir d'un rendez vous - Annonce rédigée et publiée par un Agent Mandataire -
Voir plus

Référence: 219161
Barème des honoraires
DPE
A
B
C
D
E
F
G
GES
A
B
C
D
E
F
G

Prêt immobilier

Vous souhaitez connaître votre capacité d’emprunt et trouver le meilleur crédit immobilier ?
Réaliser une simulation gratuite

Maison à COLOMIERS
Maison à COLOMIERS
Maison à COLOMIERS
Maison à COLOMIERS
Maison à COLOMIERS
Maison à COLOMIERS
Maison à COLOMIERS
Maison à COLOMIERS
Maison à COLOMIERS
Maison à COLOMIERS
Maison à COLOMIERS
Maison à COLOMIERS
Maison à COLOMIERS
Maison à COLOMIERS
Maison à COLOMIERS
Maison à COLOMIERS
Maison à COLOMIERS
Maison à COLOMIERS
Maison à COLOMIERS
Maison à COLOMIERS
Maison à COLOMIERS
Maison à COLOMIERS
Maison à COLOMIERS
Maison à COLOMIERS
Maison à COLOMIERS
Maison à COLOMIERS
Maison à COLOMIERS
Maison à COLOMIERS
Maison à COLOMIERS
Maison à COLOMIERS
Maison à COLOMIERS
Maison à COLOMIERS
Maison à COLOMIERS
Ce site est protégé par reCAPTCHA la Politique de confidentialité et les Conditions d’utilisation de Google s’appliquent.
Obtenir un prêt immobilier au meilleur taux ?

En poursuivant votre navigation sans modifier vos paramètres, vous acceptez l'utilisation de cookies susceptibles de réaliser des statistiques de visite. Cliquez ici pour plus d'informations