Bénéficiez des services de nos partenaires locaux soigneusement sélectionnés
pour vous accompagner dans votre parcours d'achat immobilier

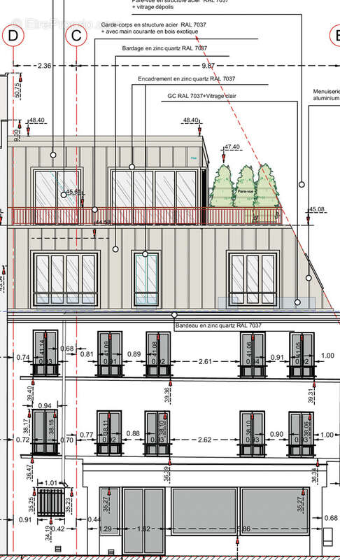
Triplex d’exception en surélévation boulogne-billancourt - passages

— Boulogne-Billancourt 92100 —
1 140 000 €
185 m²
7 pièces
balcon/terrasse

Nos partenaires locaux
À deux pas du centre-ville Les Passages Triplex avec surélévation et terrasse plein ciel
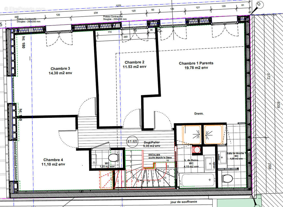
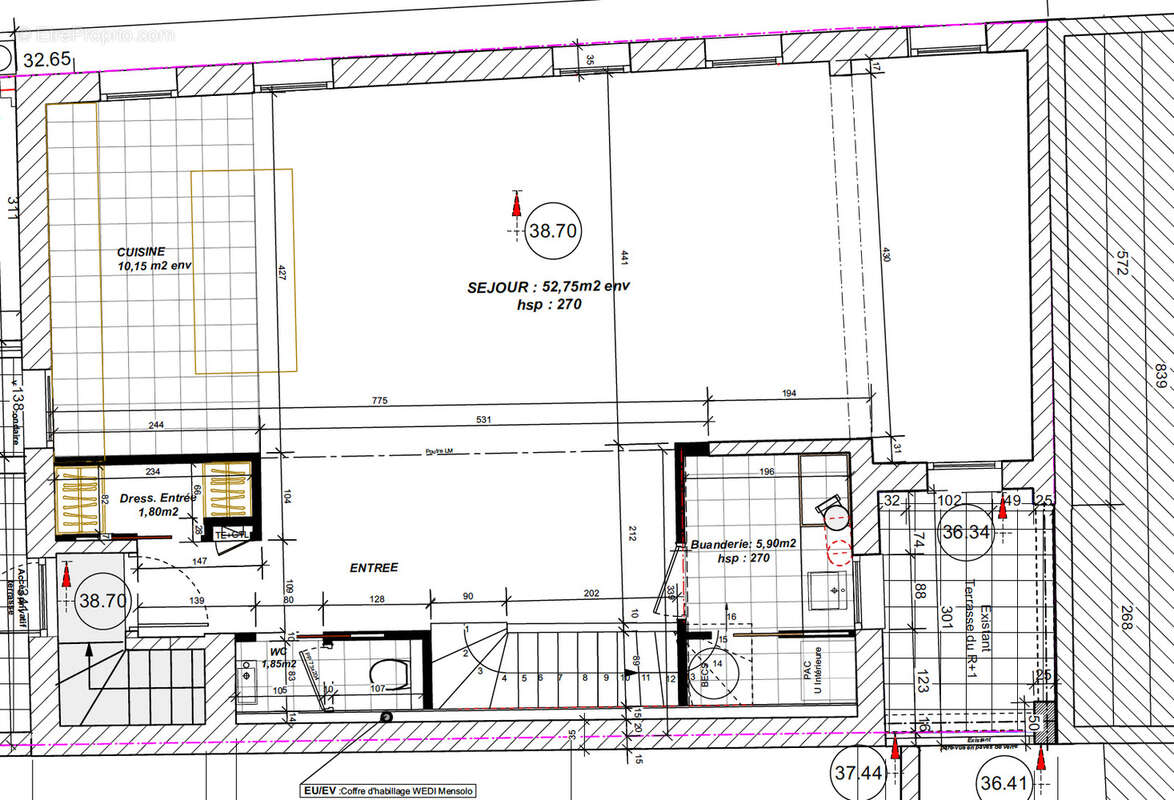
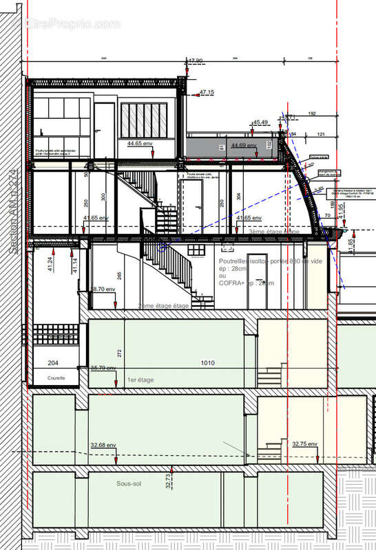
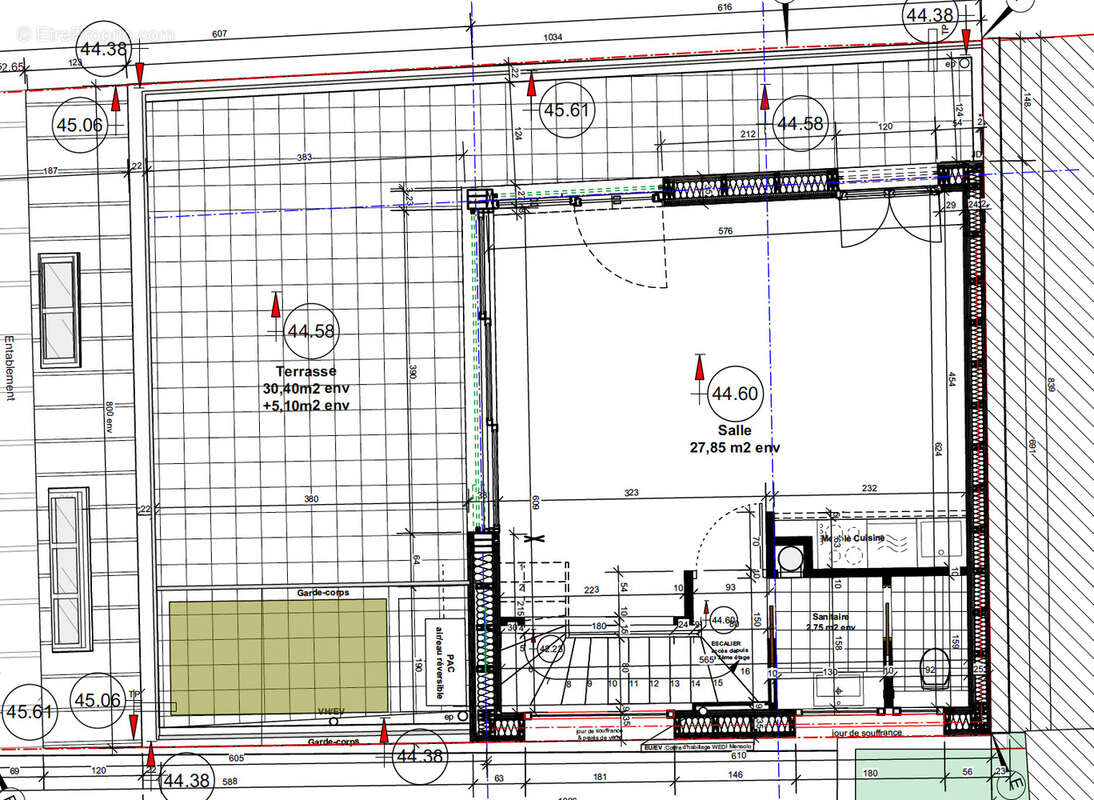
Découvrez un bien immobilier rare et exclusif à Boulogne-Billancourt, dans une petite copropriété de caractère (3 logements et un bureau).Un PC et travaux validé par la copropriété permettent d’agrandir l’actuel duplex de 88 m2 pour en faire un triplex d’exception d’environ 185 m2 avec terrasse de 35 m2 de plain-pied au 4e étage.
Caractéristiques :


Surface habitable après surélévation : env. 185 m2


Terrasse plein ciel de 35 m2, exposition Nord-Sud-Ouest


Distribution possible : vaste séjour de plus de 60 m2 avec cuisine ouverte, 4 chambres dont une suite parentale (jusqu’à 5 chambres envisageables), 2 salles de bains + buanderie


Occupation des 2e, 3e et 4e étages, dernier niveau de l’immeuble


Une cave incluse


Stationnements en location à proximité immédiate


Les atouts :


Potentiel rare à Boulogne, comparable à une maison sur le toit


Intérieur personnalisable selon vos besoins (plans modulables)


Grande terrasse idéale pour recevoir et profiter d’un espace extérieur rare en cœur de ville


Environnement calme, à deux pas des commerces, écoles et transports


Conception économe en énergie, futur DPE performant (A ou B attendu)




Cette annonce vous est proposée par LEROUX Gregoriane - EI - NoRSAC: 805 281 136, Enregistré à Greffe du tribunal de commerce de NANTERRE - Annonce rédigée et publiée par un Agent Mandataire -
Voir plus

Référence: 93929
Bien en copropriété. Charges de copropriété : 1200 €.
Honoraires d'agence de 3.5% à la charge de l'acquéreur
Barème des honoraires
DPE
A
B
C
D
E
F
G
GES
A
B
C
D
E
F
G

Prêt immobilier

Vous souhaitez connaître votre capacité d’emprunt et trouver le meilleur crédit immobilier ?
Réaliser une simulation gratuite

Appartement à BOULOGNE-BILLANCOURT
Appartement à BOULOGNE-BILLANCOURT
Appartement à BOULOGNE-BILLANCOURT
Appartement à BOULOGNE-BILLANCOURT
Appartement à BOULOGNE-BILLANCOURT
Appartement à BOULOGNE-BILLANCOURT
Appartement à BOULOGNE-BILLANCOURT
Appartement à BOULOGNE-BILLANCOURT
Appartement à BOULOGNE-BILLANCOURT
Appartement à BOULOGNE-BILLANCOURT
Appartement à BOULOGNE-BILLANCOURT
Appartement à BOULOGNE-BILLANCOURT
Appartement à BOULOGNE-BILLANCOURT
Appartement à BOULOGNE-BILLANCOURT
Appartement à BOULOGNE-BILLANCOURT
Appartement à BOULOGNE-BILLANCOURT
Appartement à BOULOGNE-BILLANCOURT
Appartement à BOULOGNE-BILLANCOURT
Appartement à BOULOGNE-BILLANCOURT
Appartement à BOULOGNE-BILLANCOURT
Appartement à BOULOGNE-BILLANCOURT
Appartement à BOULOGNE-BILLANCOURT
Appartement à BOULOGNE-BILLANCOURT
Ce site est protégé par reCAPTCHA la Politique de confidentialité et les Conditions d’utilisation de Google s’appliquent.
Obtenir un prêt immobilier au meilleur taux ?

En poursuivant votre navigation sans modifier vos paramètres, vous acceptez l'utilisation de cookies susceptibles de réaliser des statistiques de visite. Cliquez ici pour plus d'informations