Bénéficiez des services de nos partenaires locaux soigneusement sélectionnés
pour vous accompagner dans votre parcours d'achat immobilier

Durlinsdorf, plain-pied de 92m2

— Durlinsdorf 68480 —
165 000 €
92 m² / 798 m²
5 pièces
parkingjardin

Nos partenaires locaux
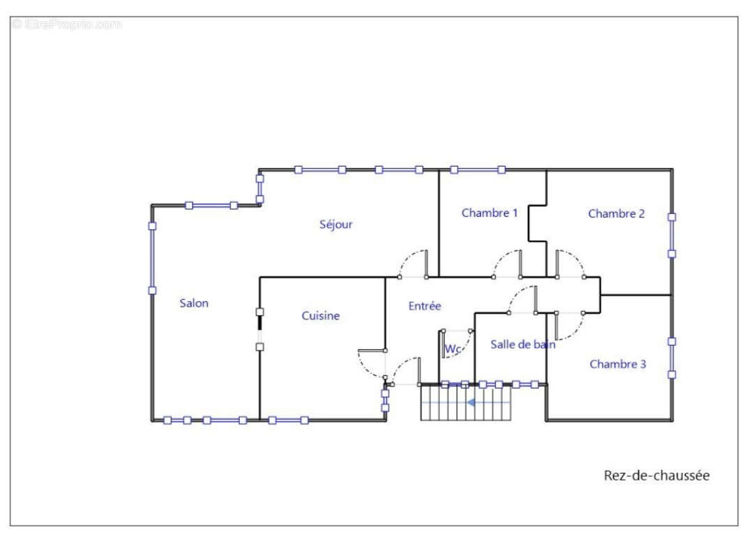
DURLINSDORF. MAISON DE PLAIN-PIED DE 92M2
Elle dispose d'une entrée, un bel espace de vie comprenant une cuisine, un salon avec cheminée et un séjour avec accès à la terrasse. Côté nuit, 3 chambres, une salle d'eau et un WC séparé. 
Un sous-sol complet comprenant une pièce multifonction, une cave, une chaufferie et un double garage. 
Le tout sur une parcelle de 798m2. 
Information techniques : 
Certaines fenêtres PVC double vitrage 
Assainissement non conforme 
Combles isolés 
Aide de l'état pour l'isolation extérieur avec ma Prime Rénov'
Contactez Magalie : [Coordonnées masquées]
[Coordonnées masquées] Les informations sur les risques auxquels ce bien est exposé sont disponibles sur le site Géorisques : https://www.georisques.gouv.fr/
Voir plus

Honoraires d'agence de 5.1% à la charge de l'acquéreur
Barème des honoraires
DPE
A
B
C
D
E
F
G
GES
A
B
C
D
E
F
G

Prêt immobilier

Vous souhaitez connaître votre capacité d’emprunt et trouver le meilleur crédit immobilier ?
Réaliser une simulation gratuite

Maison à DURLINSDORF
Maison à DURLINSDORF
Maison à DURLINSDORF
Maison à DURLINSDORF
Maison à DURLINSDORF
Maison à DURLINSDORF
Maison à DURLINSDORF
Maison à DURLINSDORF
Maison à DURLINSDORF
Maison à DURLINSDORF
Maison à DURLINSDORF
Maison à DURLINSDORF
Maison à DURLINSDORF
Maison à DURLINSDORF
Maison à DURLINSDORF
Ce site est protégé par reCAPTCHA la Politique de confidentialité et les Conditions d’utilisation de Google s’appliquent.
Obtenir un prêt immobilier au meilleur taux ?

En poursuivant votre navigation sans modifier vos paramètres, vous acceptez l'utilisation de cookies susceptibles de réaliser des statistiques de visite. Cliquez ici pour plus d'informations