Bénéficiez des services de nos partenaires locaux soigneusement sélectionnés
pour vous accompagner dans votre parcours d'achat immobilier

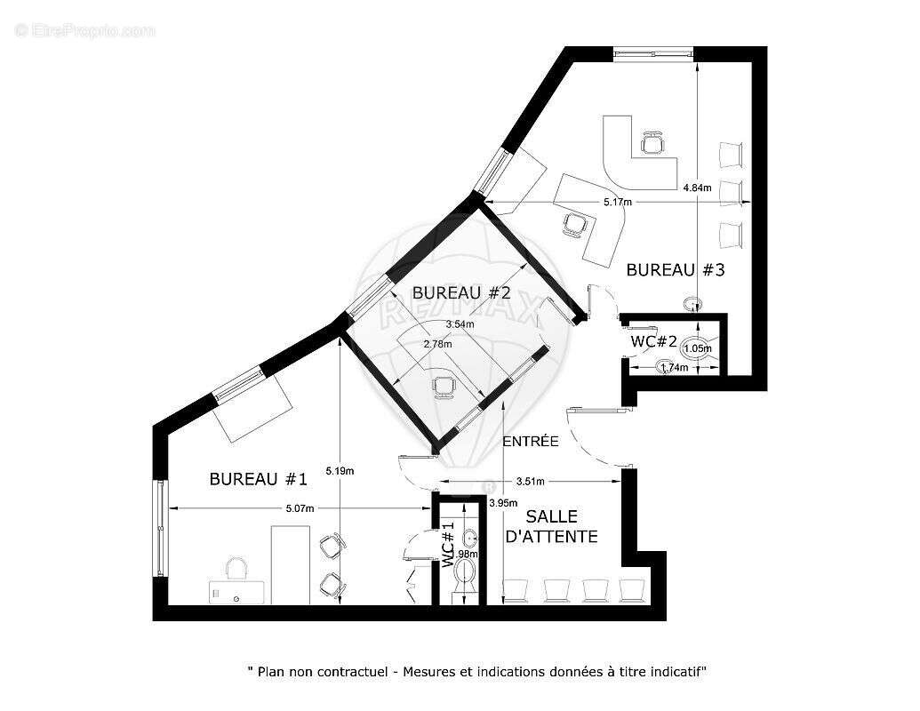
Bureau à vendre

— Aubagne 13400 —
209 000 €
73 m²
4 pièces
ascenseur

Nos partenaires locaux
Bureau à vendre - 209000 €
A VENDRE — Bureaux de standing en plein cœur d’Aubagne
Idéalement situés dans le quartier des Défensions en centre-ville d’Aubagne, ces bureaux offrent une opportunité rare pour installer votre activité dans un environnement dynamique et facilement accessible.
Emplacement stratégique à proximité immédiate des commerces, services, transports en commun gratuits , gare SNCF et des grands axes routiers .
D'une surface de 74m2, il se compose de : 3 bureaux individuels, accueil/réception, 2 sanitaires privatifs
Ces bureaux sont équipés de climatisation réversible. Ils sont accessibles par ascenseur.
Stationnement facile (parking à proximité)
Ces bureaux sont parfaits pour : Cabinets médicaux, professions libérales, start-ups, agences, ou toute entreprise à la recherche d’une belle adresse professionnelle à Aubagne
Prix de vente : 209000 € HAI

Honoraires à la charge du vendeur.

 
Bien en copropriété : 70 lots.
Procédures en cours : 0
Montant moyen annuel de la quote-part de charges courantes : 1680 €/an
Estimation des coûts annuels d'énergie du logement : Non applicable
Les informations sur les risques auxquels ce bien est exposé sont disponibles sur le site Géorisques : www.georisques.gouv.fr
Prix honoraires inclus : 209 000 € HAI
Honoraires charges vendeurs.
Agent commercial (EI) : Nathalie GEFFLOT - RSAC 918 579 814
Mandat n° 373 - Agence RCS 794 099 325
Carte professionnelle n° CPI 1310 2[Coordonnées masquées]15
Voir plus

Référence: 750211012-12
Honoraires à la charge du vendeur.

Prêt immobilier

Vous souhaitez connaître votre capacité d’emprunt et trouver le meilleur crédit immobilier ?
Réaliser une simulation gratuite

Commerce à AUBAGNE
Commerce à AUBAGNE
Commerce à AUBAGNE
Commerce à AUBAGNE
Commerce à AUBAGNE
Commerce à AUBAGNE
Commerce à AUBAGNE
Commerce à AUBAGNE
Commerce à AUBAGNE
Ce site est protégé par reCAPTCHA la Politique de confidentialité et les Conditions d’utilisation de Google s’appliquent.
Obtenir un prêt immobilier au meilleur taux ?

En poursuivant votre navigation sans modifier vos paramètres, vous acceptez l'utilisation de cookies susceptibles de réaliser des statistiques de visite. Cliquez ici pour plus d'informations