Bénéficiez des services de nos partenaires locaux soigneusement sélectionnés
pour vous accompagner dans votre parcours d'achat immobilier

Appartement 114m² à paris 17e arrondissement

— Paris-17e 75017 —
1 400 000 €
114 m²
5 pièces
piscine

Nos partenaires locaux
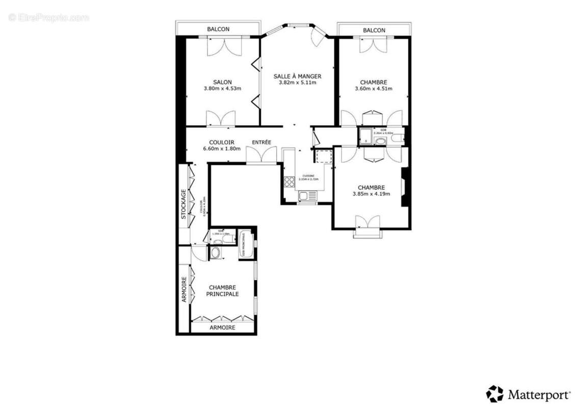
Coup de coeur : Appartement familial de 5 pièces dans un immeuble de standing en pierre de taille style Art déco offrant tout le charme des construction années 30, un plan parfaitement optimisé, 2m90 de hauteur sous plafond et 2 grands balcons.
Rue des Moines, proche de l'angle de la rue de la Jonquière, à 400m du métro Brochant, 300m du métro Guy Môquet, et 1000m de pont Cardinet, parties communes en excellent état, au 2ème étage par l'ascenseur. Appartement d'une surface de 110m² carrez, 112m² au sol + 6m² de balcon. 53m² d'espace de vie traversant : formé par l'entrée à la fois ouverte sur la cuisine US et le double séjour de 35m² éclairé par un grand bowwindow et une porte fenêtre sur balcon exposés Sud Est. La cuisine US reste entièrement aménagée et équipée.
Un espace nuit enfants entièrement séparé de l'espace nuit parents : celui des enfants comprend 2 grandes chambres de 16m² + une salle d'eau avec WC accessible par chacune des 2 chambres.
L'espace parents sans vis-à-vis, accessible par un couloir entièrement pourvu de rangements intégrés : la suite parentale de 15m² intègre une salle de bains et des rangements supplémentaires. A noter que la salle de bains actuellement ouverte peut aisément être refermée.
L'appartement comprend un second wc séparé et indépendant.
La copropriété dispose d'un parking à vélos, l'immeuble est parfaitement entretenu, la cage d'escalier impeccable, la cave de 4m² en sous-sol est saine et bétonnée. DPE F, les charges de 500€ par mois intègrent le chauffage et l'eau chaude qui sont collectifs.
Appartement de grande qualité, recherché : bien pensé, fonctionnel, charme et qualité du bâti. Appartement rénové en 2016 en bon état et entretenu, beaux volumes, plan balcon. L'exposition, les nombreuses et grandes ouvertures garantissent une belle luminosité.
Contactez nous: ERA Batignolles 97bis rue Legendre 75017 PARIS Tél: [Coordonnées masquées] / Mail: [Coordonnées masquées]
L'Etat des Risques et Pollution peut être consulté sur https://www.georisques.gouv.fr
Voir plus

Référence: 4385
DPE
A
B
C
D
E
F
G

Prêt immobilier

Vous souhaitez connaître votre capacité d’emprunt et trouver le meilleur crédit immobilier ?
Réaliser une simulation gratuite

Appartement à PARIS-17E
Appartement à PARIS-17E
Appartement à PARIS-17E
Appartement à PARIS-17E
Appartement à PARIS-17E
Appartement à PARIS-17E
Appartement à PARIS-17E
Appartement à PARIS-17E
Appartement à PARIS-17E
Appartement à PARIS-17E
Appartement à PARIS-17E
Appartement à PARIS-17E
Appartement à PARIS-17E
Appartement à PARIS-17E
Appartement à PARIS-17E
Appartement à PARIS-17E
Appartement à PARIS-17E
Appartement à PARIS-17E
Ce site est protégé par reCAPTCHA la Politique de confidentialité et les Conditions d’utilisation de Google s’appliquent.
Obtenir un prêt immobilier au meilleur taux ?

En poursuivant votre navigation sans modifier vos paramètres, vous acceptez l'utilisation de cookies susceptibles de réaliser des statistiques de visite. Cliquez ici pour plus d'informations