Bénéficiez des services de nos partenaires locaux soigneusement sélectionnés
pour vous accompagner dans votre parcours d'achat immobilier

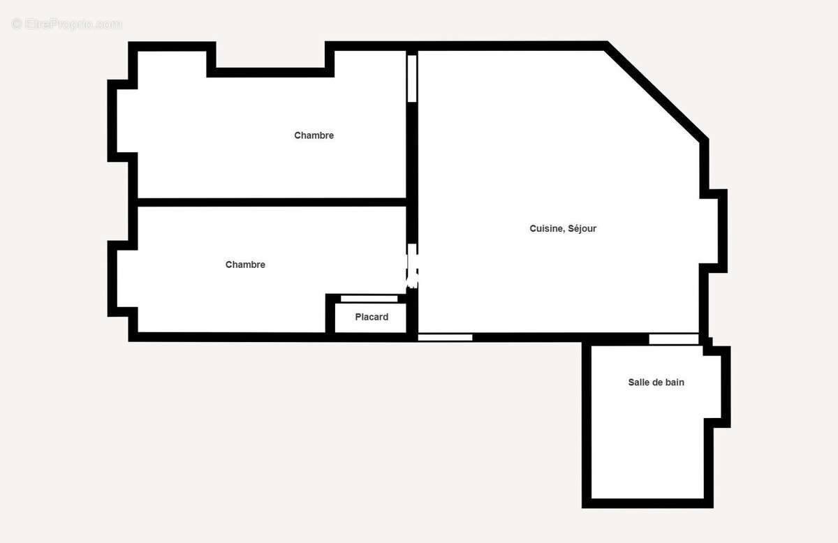
A vendre brest saint-michel appartement t3 41.36m² 2 chambres

— Brest 29200 —
128 100 €
41 m²
3 pièces

Nos partenaires locaux
A VENDRE BREST SAINT-MICHEL APPARTEMENT T3 41.36M² 2 CHAMBRES Référence : PC00450-KS Situé dans le quartier de Saint-Michel, dans une petite copropriété de deux étages, cet appartement T3 de 41 m² se compose d'une pièce de vie avec cuisine aménagée, de deux chambres, et d'une salle d'eau avec WC. L'ensemble des menuiseries sont en PVC double vitrage. L'appartement est en bon état général mais il nécessitera un rafraichissement. L'appartement est proche de toutes commodités : l'appartement se trouve à une minute des commerces et à sept minutes des écoles. Deux crèches sont implantées à moins de 10 minutes à pied. Un arrêt de bus se trouve à trois minutes du bien. Il y a également le tram à six minutes. L'aéroport Brest-Bretagne est accessible à 8 km. Pour vos loisirs, vous pourrez compter sur deux cinémas tout comme sur un tennis non loin du logement. On trouve aussi des restaurants, des commerces, des boulangeries, des supermarchés, des épiceries et des boucheries-charcuteries. Les informations sur les risques auxquels ce bien est exposé sont disponibles sur le site Géorisques : www.georisques.gouv.fr. Contactez Barraine IMMO Brest - Port pour obtenir plus de renseignements sur cet appartement à vendre à BREST. (6.75 % honoraires TTC à la charge de l'acquéreur.) Copropriété de 05 lots - dont 5 lots habitation. (Pas de procédure en cours). Charges annuelles : 528 euros.
Voir plus

Référence: PC00450-KS
Bien en copropriété. Nombre de lots : 5. Charges de copropriété : 528 €.
Honoraires d'agence de 6.75% à la charge de l'acquéreur
Barème des honoraires
DPE
A
B
C
D
E
F
G
GES
A
B
C
D
E
F
G

Prêt immobilier

Vous souhaitez connaître votre capacité d’emprunt et trouver le meilleur crédit immobilier ?
Réaliser une simulation gratuite

Appartement à BREST
Appartement à BREST
Appartement à BREST
Appartement à BREST
Appartement à BREST
Appartement à BREST
Appartement à BREST
Appartement à BREST
Appartement à BREST
Appartement à BREST
Appartement à BREST
Appartement à BREST
Appartement à BREST
Appartement à BREST
Appartement à BREST
Appartement à BREST
Appartement à BREST
Appartement à BREST
Appartement à BREST
Ce site est protégé par reCAPTCHA la Politique de confidentialité et les Conditions d’utilisation de Google s’appliquent.
Obtenir un prêt immobilier au meilleur taux ?

En poursuivant votre navigation sans modifier vos paramètres, vous acceptez l'utilisation de cookies susceptibles de réaliser des statistiques de visite. Cliquez ici pour plus d'informations