Bénéficiez des services de nos partenaires locaux soigneusement sélectionnés
pour vous accompagner dans votre parcours d'achat immobilier

Maison 71m² à perpignan

— Perpignan 66000 —
194 999 €
71 m² / 90 m²
4 pièces
parkingbalcon/terrassejardin

Nos partenaires locaux
Iad France - Aline Castro vous propose : Maison de Ville Chaleureuse avec Garage et Terrasse a Perpignan (secteur hôpital)
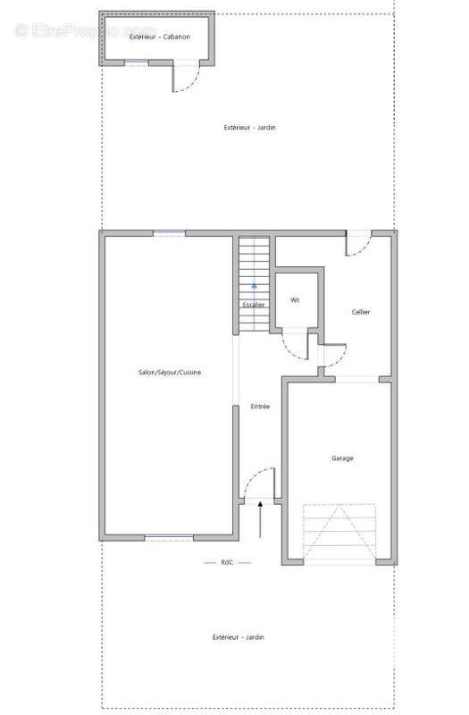
Bienvenue dans cette charmante maison de ville située en plein centre de Perpignan, offrant un cadre de vie authentique et confortable. Érigée en 1970, cette maison de 90 m² propose un agencement agréable sur un unique niveau, idéal pour une vie de famille ou un couple en quête de sérénité.

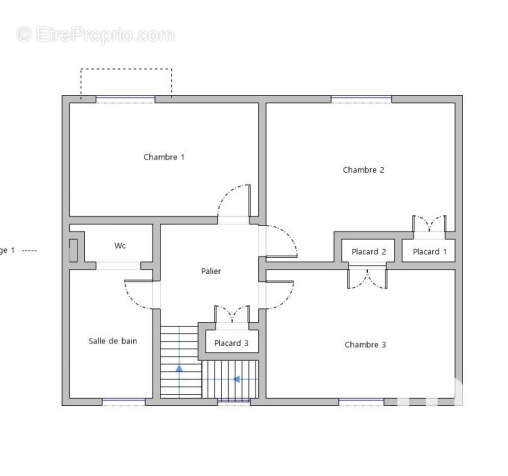
Dès l'entrée, vous serez séduit par l'atmosphère chaleureuse de cette maison. Le rez-de-chaussée se compose d'un salon lumineux, d'une cuisine aménage, de trois chambres spacieuses, d'une salle de bain et de deux toilettes. Chaque pièce est élégamment agencée pour offrir un maximum de confort au quotidien.

Les points forts de ce bien incluent un garage privatif, idéal pour stationner en toute sécurité, ainsi qu'un agréable balcon pour profiter des journées ensoleillées. Deux terrasses bien exposées offrent des espaces extérieurs supplémentaires pour se détendre en toute intimité.

La maison est en très bon état général, offrant un cadre de vie immédiatement confortable sans travaux à prévoir. Les équipements sont complets, incluant la fibre optique, l'assainissement, et un système de rangement pratique.

Idéalement située en plein cOEur de Perpignan, vous bénéficierez de la proximité des commerces, des écoles et des transports en commun. Profitez également des nombreux points d'intérêt à proximité pour agrémenter vos balades et vos sorties.

Cette maison de ville chaleureuse à Perpignan offre un cadre de vie paisible et fonctionnel, idéal pour les familles ou les couples en quête de confort et de tranquillité au quotidien. Ne manquez pas cette opportunité rare, contactez-moi dès aujourd'hui pour organiser une visite !

Honoraires d'agence à la charge du vendeur.
Information d'affichage énergétique sur ce bien : classe ENERGIE E indice 240 et classe CLIMAT E indice 59. Les informations sur les risques auxquels ce bien est exposé, y compris l'obligation légale de débroussaillement, sont disponibles sur le site Géorisques : http://www.georisques.gouv.fr.
La présente annonce immobilière a été rédigée sous la responsabilité éditoriale de Mme Aline Castro mandataire indépendant en immobilier (sans détention de fonds), agent commercial de la SAS I@D France immatriculé au RSAC de CARCASSONNE sous le numéro 798130845, titulaire de la carte de démarchage immobilier pour le compte de la société I@D France SAS.
Informations LOI ALUR :
Honoraires charge vendeur. (gedeon_6727_31861800)
Voir plus

Référence: 1842789
Honoraires à la charge du vendeur.
DPE
A
B
C
D
E
F
G
GES
A
B
C
D
E
F
G

Prêt immobilier

Vous souhaitez connaître votre capacité d’emprunt et trouver le meilleur crédit immobilier ?
Réaliser une simulation gratuite

Photo 1 - Maison à PERPIGNAN
Photo 1
Photo 2 - Maison à PERPIGNAN
Photo 2
Photo 3 - Maison à PERPIGNAN
Photo 3
Photo 4 - Maison à PERPIGNAN
Photo 4
Photo 5 - Maison à PERPIGNAN
Photo 5
Photo 6 - Maison à PERPIGNAN
Photo 6
Photo 7 - Maison à PERPIGNAN
Photo 7
Photo 8 - Maison à PERPIGNAN
Photo 8
Photo 9 - Maison à PERPIGNAN
Photo 9
Ce site est protégé par reCAPTCHA la Politique de confidentialité et les Conditions d’utilisation de Google s’appliquent.
Obtenir un prêt immobilier au meilleur taux ?

En poursuivant votre navigation sans modifier vos paramètres, vous acceptez l'utilisation de cookies susceptibles de réaliser des statistiques de visite. Cliquez ici pour plus d'informations