Bénéficiez des services de nos partenaires locaux soigneusement sélectionnés
pour vous accompagner dans votre parcours d'achat immobilier

Marcel sembat 5 pièces 4 chambres, comme une maison 108.88m2 au sol

— Boulogne-Billancourt 92100 —
755 000 €
107 m²
6 pièces

Nos partenaires locaux
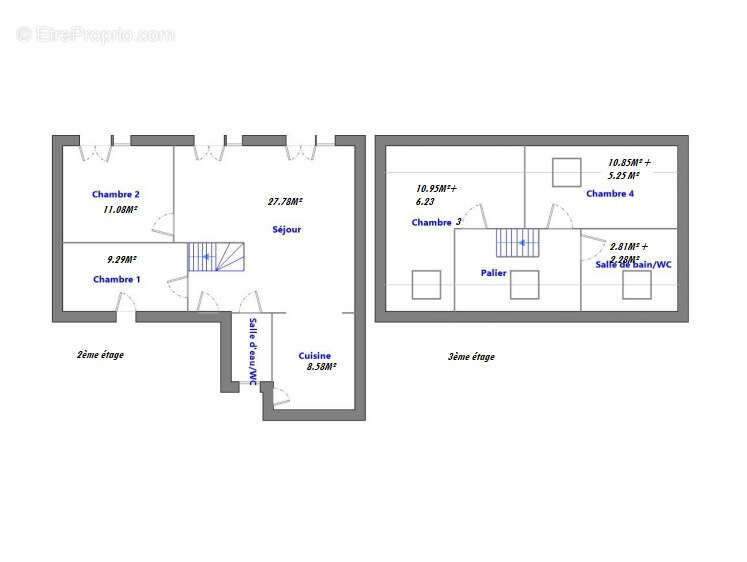
À vendre : Appartement coup de cœur en duplex Situé à proximité du métro Marcel Sembat, dans une charmante petite copropriété, cet appartement d'une surface au sol: 108.86m2 soit : 86.86m2 Carrez + 22.16 m2 de 5 pièces saura vous séduire. Au 2ème étage, vous découvrirez un séjour lumineux de 27 m2, agrémenté d'une cuisine américaine au style atelier, idéale pour recevoir. Vous y trouverez également deux chambres, une salle de douche avex wc . Au 3ème étage, un dégagement avec rangements vous mène à deux autres chambres, ainsi qu'à une salle de bains avec toilettes. Pour compléter ce bien, une cave est disponible au sous-sol. Ne manquez pas cette opportunité rare ! l'appartement a actuellement une note énergetique en F (Le prix de l'appartement inclus des travaux d'isolation thermique avec peinture 2 couches 25 000€ et un certificat énergetique en D )
Voir plus

Barème des honoraires
DPE
A
B
C
D
E
F
G
GES
A
B
C
D
E
F
G

Prêt immobilier

Vous souhaitez connaître votre capacité d’emprunt et trouver le meilleur crédit immobilier ?
Réaliser une simulation gratuite

Appartement à BOULOGNE-BILLANCOURT
Appartement à BOULOGNE-BILLANCOURT
Appartement à BOULOGNE-BILLANCOURT
Appartement à BOULOGNE-BILLANCOURT
Appartement à BOULOGNE-BILLANCOURT
Appartement à BOULOGNE-BILLANCOURT
Appartement à BOULOGNE-BILLANCOURT
Appartement à BOULOGNE-BILLANCOURT
Ce site est protégé par reCAPTCHA la Politique de confidentialité et les Conditions d’utilisation de Google s’appliquent.
Obtenir un prêt immobilier au meilleur taux ?

En poursuivant votre navigation sans modifier vos paramètres, vous acceptez l'utilisation de cookies susceptibles de réaliser des statistiques de visite. Cliquez ici pour plus d'informations