Bénéficiez des services de nos partenaires locaux soigneusement sélectionnés
pour vous accompagner dans votre parcours d'achat immobilier

Appartement

— Paris-15e 75015 —
618 000 €
75 m²
3 pièces
ascenseur

Nos partenaires locaux
15ème Convention
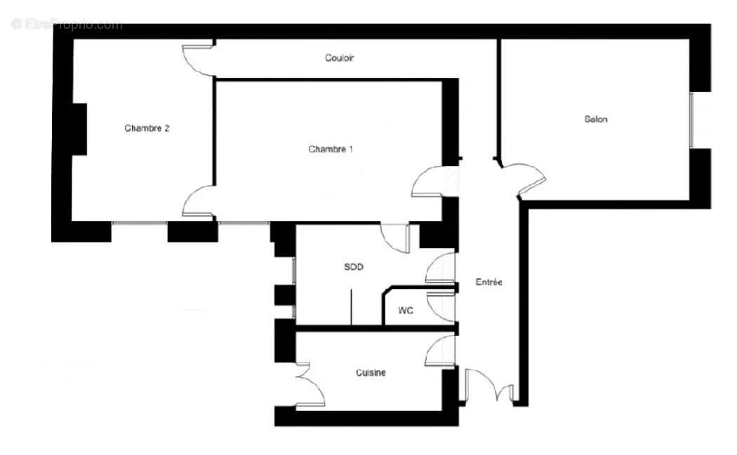
Dans un quartier agréable et commerçant, entre les métros Boucicaut et Félix Faure, appartement traversant situé au rez-de-chaussée, d'un immeuble, très bien tenu, datant de 1930.
Il est aujourd'hui composé : d'un large couloir d'entrée, d'un séjour sur rue, de deux chambres sur cour, d'un dressing, d'une salle de douches, d'un toilette invité et d'une cuisine séparée donnant un accès direct à la cour intérieure de l'immeuble, où il est possible d'installer une petite table et chaises.
Traversant, bien exposé nord/ ouest- sud/ ouest, qui, bien qu'il soit au rez-de-chaussée, est lumineux.
Hauteur sous plafond de 3m
Prévoir travaux, potentiel intéressant.
Idéal profession libérale.
Chauffage collectif gaz


- Montant estimé des dépenses annuelles d'énergie pour un usage standard : Entre 1830 et 2520 par an. Prix moyens des énergies indexés au 1er janvier 2020 (abonnement compris)
Voir plus

Référence: 1001750
DPE
A
B
C
D
E
F
G
GES
A
B
C
D
E
F
G

Prêt immobilier

Vous souhaitez connaître votre capacité d’emprunt et trouver le meilleur crédit immobilier ?
Réaliser une simulation gratuite

Appartement à PARIS-15E
Appartement à PARIS-15E
Appartement à PARIS-15E
Appartement à PARIS-15E
Appartement à PARIS-15E
Appartement à PARIS-15E
Appartement à PARIS-15E
Appartement à PARIS-15E
Appartement à PARIS-15E
Appartement à PARIS-15E
Ce site est protégé par reCAPTCHA la Politique de confidentialité et les Conditions d’utilisation de Google s’appliquent.
Obtenir un prêt immobilier au meilleur taux ?

En poursuivant votre navigation sans modifier vos paramètres, vous acceptez l'utilisation de cookies susceptibles de réaliser des statistiques de visite. Cliquez ici pour plus d'informations