Bénéficiez des services de nos partenaires locaux soigneusement sélectionnés
pour vous accompagner dans votre parcours d'achat immobilier

Terrain à bâtir 318m2 avec permis purgé quartier saint simon

— Toulouse 31000 —
99 000 €
310 m²
parkingjardin

Nos partenaires locaux
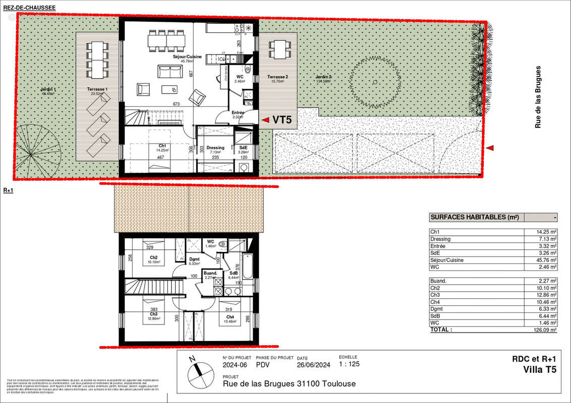
Au sein du Quartier résidentiel de Saint Simon, terrain à batir de 318 m2 arboré par un magnifique Cèdre d'Atlas.
Un projet de construction d'une maison individuelle a été déposé par un architecte de renom.
La maison fera une superficie totale de 126m2.
Au rez de chaussée, vous retrouverez une entrée qui vous aménera vers une cuisine ouverte avec un spacieux salon séjour de 47m2 donnant sur une belle terrasse avec jardin.
Une suite parentale avec dressing et salle d'eau complètera ce niveau.
A l'étage, vous retrouverez trois chambres avec rangements, une grande salle de bains ainsi qu'une buanderie et Wc.
2 places extérieur vous permettront de stationner facilement.
Le terrain sera vendu viabilisée avec permis de construire purgé de tout recours.Possibilité de faire un modificatif.
Un chiffrage précis de chaque poste est disponible.
Prix net vendeur : 99 000 EUR
Voir plus

Référence: 398
Barème des honoraires

Prêt immobilier

Vous souhaitez connaître votre capacité d’emprunt et trouver le meilleur crédit immobilier ?
Réaliser une simulation gratuite

Terrain à TOULOUSE
Terrain à TOULOUSE
Terrain à TOULOUSE
Terrain à TOULOUSE
Ce site est protégé par reCAPTCHA la Politique de confidentialité et les Conditions d’utilisation de Google s’appliquent.
Obtenir un prêt immobilier au meilleur taux ?

En poursuivant votre navigation sans modifier vos paramètres, vous acceptez l'utilisation de cookies susceptibles de réaliser des statistiques de visite. Cliquez ici pour plus d'informations