Bénéficiez des services de nos partenaires locaux soigneusement sélectionnés
pour vous accompagner dans votre parcours d'achat immobilier

Commerce 134m² à paris-11e

— Paris-11e 75011 —
1 330 000 €
134 m²

Nos partenaires locaux
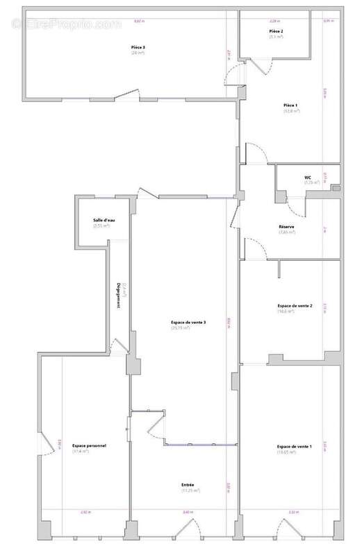
GIFOM – Vente Local Professionnel 134 m² de plain pied prox. Oberkampf-République 75011 PARIS

Situé entre l'avenue de la République et la rue Oberkampf , à 2 pas des métro Oberkampf et Parmentier, local commercial - boutique - Local Professionnel de 134,10 m² avec triple vitrine de 10 mètres linéaire. Ce local, divisible, se compose de trois pièces sur rue, deux espaces articulés autour d'une cour calme, ainsi que deux salles d'eau avec WC. L'ensemble est facilement aménageable et divisible selon vos besoins avec 6 entrées possible (3 sur rue, une sur parties communes et 2 sur cour).

Idéal investisseur ou exploitant pour tous types d'activités libérale-médical, Pop-up store, location saisonnière, espace de coworking ou bureaux partagés. A voir rapidement

Prix de vente : 1 330 000 € FAI.
Réf. Agence : VEMU 980-4.
GIFOM - Spécialiste en immobilier Commercial
Site internet : https://gifom.octissimo.com/
Voir plus

Référence: VEMU 980-4-GIFOM75
Bien en copropriété. Nombre de lots : 38.
Honoraires d'agence de 4.72% à la charge de l'acquéreur
Barème des honoraires
DPE
A
B
C
D
E
F
G
GES
A
B
C
D
E
F
G

Prêt immobilier

Vous souhaitez connaître votre capacité d’emprunt et trouver le meilleur crédit immobilier ?
Réaliser une simulation gratuite

Commerce à PARIS-11E
Commerce à PARIS-11E
Commerce à PARIS-11E
Commerce à PARIS-11E
Commerce à PARIS-11E
Commerce à PARIS-11E
Commerce à PARIS-11E
Commerce à PARIS-11E
Commerce à PARIS-11E
Ce site est protégé par reCAPTCHA la Politique de confidentialité et les Conditions d’utilisation de Google s’appliquent.
Obtenir un prêt immobilier au meilleur taux ?

En poursuivant votre navigation sans modifier vos paramètres, vous acceptez l'utilisation de cookies susceptibles de réaliser des statistiques de visite. Cliquez ici pour plus d'informations