Bénéficiez des services de nos partenaires locaux soigneusement sélectionnés
pour vous accompagner dans votre parcours d'achat immobilier

Maison cottage - 3 appartements - belles prestations - rare

— Mandelieu-La-Napoule 06210 —
1 590 000 €
260 m²
6 pièces
parkingbalcon/terrassejardinpiscine

Nos partenaires locaux
Votre équipe Orpi est disponible par téléphone, privilégiez un appel pour une réponse rapide et efficace, n'hésitez pas.

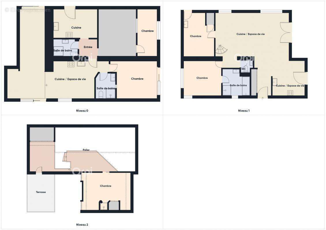
RARE - MAISON AU COEUR DU QUARTIER COTTAGE
Venez découvrir cette très belle maison de 250m² qui se compose aujourd'hui de 3 appartements:
Une maison principale de 127m² accessible depuis un escalier extérieur qui se compose d'une entrée desservant un spacieux séjour avec cuisine ouverte, aménagée et équipée. Une chambre en suite avec sa salle de bains, un wc indépendant et une 2ème chambre, également en suite avec salle d'eau et wc indépendant. Une terrasse exposée plein Sud et une autre terrasse au Nord vous permettront de profiter pleinement des extérieurs au gré des saisons.
A l'étage une mezzanine et une 3ème chambre en suite avec salle d'eau et wc avec accès à une tropézienne.

Au rez-de-chaussée de la maison, un appartement de type T2 entièrement refait qui se compose d'une cuisine indépendante, un dégagement menant au séjour, chambre et salle d'eau avec wc pour une superficie totale de 38,30m².

Au rez-de-chaussée de la maison, un autre appartement de type T2, plus spacieux d'une superficie de 57,09m² et qui se compose d'un séjour, cuisine indépendante, une chambre et salle d'eau avec wc. Très belle terrasse avec cuisine d'été et pergola bioclimatique.

Concernant les stationnements, un garage pouvant également servir d'atelier et 3 parkings extérieurs.
Pour les extérieurs, une piscine de 7 x 3,5m et un jacuzzi 5 places.

Aucun travaux à prévoir pour cette maison clé en mains aux très belles prestations et à la domotique perfectionnée.

Proposée par votre Agence Immobilière Orpi. Visite Virtuelle 3D disponible en Agence.
Référence agence : 8804
Voir plus

Référence: FLW7-R3F-FE3
Honoraires à la charge du vendeur.
DPE
A
B
C
D
E
F
G
GES
A
B
C
D
E
F
G

Prêt immobilier

Vous souhaitez connaître votre capacité d’emprunt et trouver le meilleur crédit immobilier ?
Réaliser une simulation gratuite

Maison à MANDELIEU-LA-NAPOULE
Maison à MANDELIEU-LA-NAPOULE
Maison à MANDELIEU-LA-NAPOULE
Maison à MANDELIEU-LA-NAPOULE
Maison à MANDELIEU-LA-NAPOULE
Maison à MANDELIEU-LA-NAPOULE
Maison à MANDELIEU-LA-NAPOULE
Maison à MANDELIEU-LA-NAPOULE
Maison à MANDELIEU-LA-NAPOULE
Maison à MANDELIEU-LA-NAPOULE
Maison à MANDELIEU-LA-NAPOULE
Maison à MANDELIEU-LA-NAPOULE
Maison à MANDELIEU-LA-NAPOULE
Maison à MANDELIEU-LA-NAPOULE
Maison à MANDELIEU-LA-NAPOULE
Maison à MANDELIEU-LA-NAPOULE
Maison à MANDELIEU-LA-NAPOULE
Maison à MANDELIEU-LA-NAPOULE
Maison à MANDELIEU-LA-NAPOULE
Maison à MANDELIEU-LA-NAPOULE
Maison à MANDELIEU-LA-NAPOULE
Maison à MANDELIEU-LA-NAPOULE
Maison à MANDELIEU-LA-NAPOULE
Maison à MANDELIEU-LA-NAPOULE
Maison à MANDELIEU-LA-NAPOULE
Maison à MANDELIEU-LA-NAPOULE
Maison à MANDELIEU-LA-NAPOULE
Maison à MANDELIEU-LA-NAPOULE
Maison à MANDELIEU-LA-NAPOULE
Maison à MANDELIEU-LA-NAPOULE
Maison à MANDELIEU-LA-NAPOULE
Maison à MANDELIEU-LA-NAPOULE
Maison à MANDELIEU-LA-NAPOULE
Maison à MANDELIEU-LA-NAPOULE
Maison à MANDELIEU-LA-NAPOULE
Ce site est protégé par reCAPTCHA la Politique de confidentialité et les Conditions d’utilisation de Google s’appliquent.
Obtenir un prêt immobilier au meilleur taux ?

En poursuivant votre navigation sans modifier vos paramètres, vous acceptez l'utilisation de cookies susceptibles de réaliser des statistiques de visite. Cliquez ici pour plus d'informations