À 5 min de vézénobres : ancienne bergerie en pierre dans un écrin de verdure

— Cassagnoles 30350 —
199 000 €
69 m²
3 pièces
parkingbalcon/terrasse

Située dans un charmant village à seulement 25 minutes de Nîmes, 10 minutes d'Alès et 5 minutes de Vézénobres, cette ancienne bergerie en pierre pleine de caractère offre un potentiel exceptionnel.
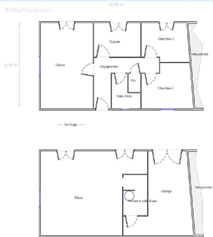
Édifiée sur une parcelle de 972 m2 disposant de deux entrées distinctes, elle permet la création de deux logements indépendants.
La maison principale se compose d’un séjour, d’une cuisine, d’une salle d’eau, d’un WC indépendant et de deux chambres. Elle est équipée de menuiseries double vitrage.
Une annexe attenante d’environ 69 m2, comprenant une grande pièce, une ancienne salle d’eau et un garage, reste à aménager. Elle offre, selon vos envies et projets, la possibilité de créer un second logement.
Le tout est situé dans un environnement calme et paisible, idéal pour les amoureux de la nature.
Voir plus

Référence: 16213
Honoraires à la charge du vendeur.
Barème des honoraires
DPE
A
B
C
D
E
F
G
GES
A
B
C
D
E
F
G

Prêt immobilier

Vous souhaitez connaître votre capacité d’emprunt et trouver le meilleur crédit immobilier ?
Réaliser une simulation gratuite

Maison à CASSAGNOLES
Maison à CASSAGNOLES
Maison à CASSAGNOLES
Maison à CASSAGNOLES
Maison à CASSAGNOLES
Maison à CASSAGNOLES
Maison à CASSAGNOLES
Maison à CASSAGNOLES
Maison à CASSAGNOLES
Maison à CASSAGNOLES
Maison à CASSAGNOLES
Ce site est protégé par reCAPTCHA la Politique de confidentialité et les Conditions d’utilisation de Google s’appliquent.
Obtenir un prêt immobilier au meilleur taux ?

En poursuivant votre navigation sans modifier vos paramètres, vous acceptez l'utilisation de cookies susceptibles de réaliser des statistiques de visite. Cliquez ici pour plus d'informations