Bénéficiez des services de nos partenaires locaux soigneusement sélectionnés
pour vous accompagner dans votre parcours d'achat immobilier

Appartement

— Bron 69500 —
249 900 €
104 m²
5 pièces
parkingbalcon/terrasseascenseur

Nos partenaires locaux
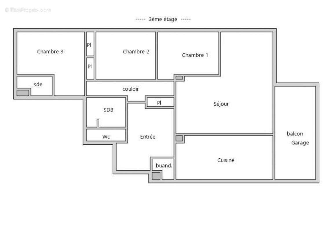
69500 – BRON – APPARTEMENT T4/T5 – 3 CHAMBRES – BALCON – LUMINEUX – AU CALME – GARAGE – CAVE – STATIONNEMENT – ASCENSEUR

Loïc FERNANDEZ et Efficity, sont ravis de vous présenter ce magnifique appartement T4, offrant une surface de 104m2 avec un balcon, situé à deux pas des commodités et des transports en commun, dans la commune de Bron.

Ce superbe appartement se trouve au 1 rue Helene Boucher, au sein d'une copropriété calme et bien entretenu au 3ème étage sur 5 avec ascenseur, offrant un cadre de vie idéal pour une famille.
Dès l'entrée, un grand hall dessert la pièce de vie principale, d'une superficie de plus de 40 m² qui bénéficie de grandes baies vitrées apportant une luminosité avec accès direct au balcon.
La cuisine fermée, spacieuse et entièrement équipée vient compléter l'espace de vie.

Côté nuit, l'appartement dispose de trois chambres, dont une suite parentale avec salle d'eau privative.
Une deuxième salle de bain ainsi qu'un WC séparé complète le bien.

La configuration du salon permet également la création d'une quatrième chambre pour répondre aux besoins des familles nombreuses ou pour un espace bureau.

COTE RESIDENCE :
- Un garage en sous-sol
- 2 Places de stationnement privatif
- Cave privative
- Façade avec isolation par l'extérieur
- Chauffage gaz de ville avec chaudière récente

COTE APPARTEMENT :
- Climatisation réversible (PAC)
- Balcon de 9m2
- Huisseries PVC double vitrage
- Cuisine entièrement équipée
- Nombreux rangements

COTE FINANCE :
- DPE en C, garantissant confort thermique et économies d'énergie.
- Taxe foncière : 1514euros/an
- Charges : 481€/Trimestre (eau froide, chauffage, entretien des parties commune, fond travaux Alur, ascenseur et les espaces verts)

COTE PRATIQUE :
-A 200m de la Mosquée de Bron
-Carrefour Vaulx en Velin à 1km
-Tram T5 à 1km

Pour plus d'informations et pour organiser une visite, veuillez me contacter du LUNDI AU DIMANCHE par téléphone au [Coordonnées masquées] ou par mail [Coordonnées masquées].
Les informations sur les risques auxquels ce bien est exposé sont disponibles sur le site Georisque : georisques. gouv. fr
Loic Fernandez - EI - est Agent Commercial mandataire en immobilier, immatriculé au Registre Spécial des Agents Commerciaux du Tribunal de Commerce de Bourg-en-Bresse sous le n°898127121.
Siège social du mandant : effiCity, 48 avenue de Villiers - 75017 PARIS - Société par Actions Simplifiée, société au capital de 132 373,05 euros, immatriculée au RCS Paris 497 617 746 et titulaire de la Carte professionnelle CPI 75[Coordonnées masquées]02 025 - CCI Paris IDF - Caisse de Garantie : GALIAN Assurances 89 rue de la Boétie 75008 Paris
Voir plus

Référence: 190886
Bien en copropriété. Nombre de lots : 86. Charges de copropriété : 160 €.
Honoraires à la charge du vendeur.
Barème des honoraires
DPE
A
B
C
D
E
F
G
GES
A
B
C
D
E
F
G

Prêt immobilier

Vous souhaitez connaître votre capacité d’emprunt et trouver le meilleur crédit immobilier ?
Réaliser une simulation gratuite

Appartement à BRON
Appartement à BRON
Appartement à BRON
Appartement à BRON
Appartement à BRON
Appartement à BRON
Appartement à BRON
Ce site est protégé par reCAPTCHA la Politique de confidentialité et les Conditions d’utilisation de Google s’appliquent.
Obtenir un prêt immobilier au meilleur taux ?

En poursuivant votre navigation sans modifier vos paramètres, vous acceptez l'utilisation de cookies susceptibles de réaliser des statistiques de visite. Cliquez ici pour plus d'informations