Pas de commerce à Naizin pour le moment. Découvrez dès maintenant les commerces dans le département Morbihan.
Bénéficiez des services de nos partenaires locaux soigneusement sélectionnés
pour vous accompagner dans votre parcours d'achat immobilier

Menton - garavan - spacieux 3 pièces - front de mer

— Menton 06500 —
455 000 €
71 m²
3 pièces
balcon/terrasse

Nos partenaires locaux
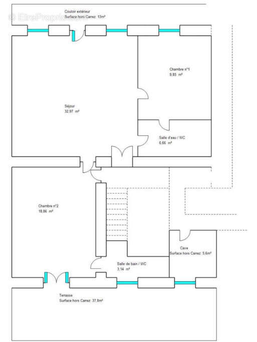
Menton - Front de Mer. Situé dans le prestigieux quartier de Garavan, cet appartement de 3 pièces traversant, d’une superficie de 71,48 m2, se trouve au rez-de-jardin d’une villa bourgeoise composée de seulement cinq appartements. Une opportunité rare, offrant un cadre exclusif et paisible en front de mer, avec faibles charges et terrasse/jardin privatifs.
Son emplacement privilégié et sa rareté en font une véritable perle rare, idéale pour les amateurs de charme et de tranquillité.
L’appartement bénéficie d’un agencement fonctionnel et confortable. Il se compose d’un séjour avec cuisine américaine aménagée et équipée, de deux chambres et de deux salles d’eau. L’espace extérieur est un véritable atout, avec une grande terrasse d’environ 37 m2, équipée d’une douche extérieure, parfaite pour profiter des beaux jours après une journée à la plage. Un joli balcon exposé plein sud permet également l’accès à l’appartement, offrant une agréable vue sur les jardins de la résidence et sur la mer. Une cave complète ce bien.
Ce bien d’exception séduit par son charme unique, son cadre privilégié et son grand confort au quotidien. Une occasion unique pour ceux qui recherchent une résidence en bord de mer avec une atmosphère paisible et raffinée.
Voir plus

Référence: 18
Bien en copropriété.
DPE
A
B
C
D
E
F
G
GES
A
B
C
D
E
F
G

Prêt immobilier

Vous souhaitez connaître votre capacité d’emprunt et trouver le meilleur crédit immobilier ?
Réaliser une simulation gratuite

Appartement à MENTON
Appartement à MENTON
Appartement à MENTON
Appartement à MENTON
Appartement à MENTON
Appartement à MENTON
Appartement à MENTON
Appartement à MENTON
Appartement à MENTON
Appartement à MENTON
Appartement à MENTON
Appartement à MENTON
Appartement à MENTON
Appartement à MENTON
Appartement à MENTON
Appartement à MENTON
Appartement à MENTON
Appartement à MENTON
Appartement à MENTON
Appartement à MENTON
Appartement à MENTON
Appartement à MENTON
Appartement à MENTON
Appartement à MENTON
Ce site est protégé par reCAPTCHA la Politique de confidentialité et les Conditions d’utilisation de Google s’appliquent.
Obtenir un prêt immobilier au meilleur taux ?

En poursuivant votre navigation sans modifier vos paramètres, vous acceptez l'utilisation de cookies susceptibles de réaliser des statistiques de visite. Cliquez ici pour plus d'informations