Bénéficiez des services de nos partenaires locaux soigneusement sélectionnés
pour vous accompagner dans votre parcours d'achat immobilier

Lourmel - 4 chambres / balcon

— Paris-15e 75015 —
1 165 000 €
159 m²
6 pièces
balcon/terrasseascenseur

Nos partenaires locaux
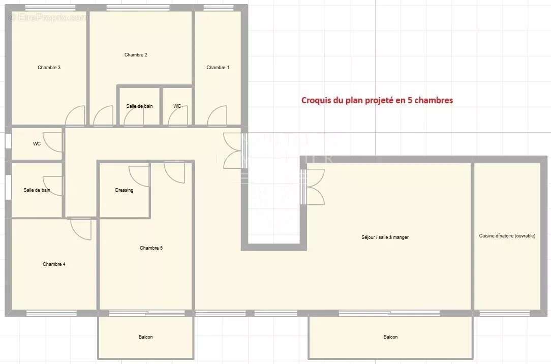
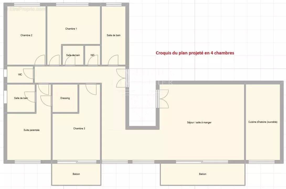
PARIS XV. LOURMEL. APPARTEMENT QUATRE CHAMBRES AVEC BALCONS. EXCELLENT PLAN. VUES DÉGAGÉES EN ÉTAGE ÉLEVÉ.

Au septième étage d'un immeuble récent de standing, bien entretenu avec gardien,

Appartement familial disposant d'un très bon plan avec une superficie de 159,40 m² loi Carrez. Ce bien, qui sera à rénover, bénéficie de deux balcons et comprend :

une entrée, un grand séjour et une salle à manger - 51 m² de réception – prolongés par le balcon, une cuisine séparée, quatre chambres au calme, une salle de bains, deux salles de douche, trois toilettes indépendantes, nombreux rangements.
Possibilité de créer une cinquième chambre.
Vendu avec deux caves.

Idéal pour une famille, cet appartement bénéficie également d'une seconde entrée offrant la possibilité de faire un studio ou un deux-pièces indépendants.

Usage mixte possible : habitation et profession libérale.
À proximité immédiate des commerces, écoles, transports.
Un double emplacement de parking intérieur est disponible en option.

CONSULTANTS IMMOBILIER PARIS
Voir plus

Référence: 86215837
Barème des honoraires
DPE
A
B
C
D
E
F
G
GES
A
B
C
D
E
F
G

Prêt immobilier

Vous souhaitez connaître votre capacité d’emprunt et trouver le meilleur crédit immobilier ?
Réaliser une simulation gratuite

Appartement à PARIS-15E
Appartement à PARIS-15E
Appartement à PARIS-15E
Appartement à PARIS-15E
Appartement à PARIS-15E
Appartement à PARIS-15E
Appartement à PARIS-15E
Appartement à PARIS-15E
Appartement à PARIS-15E
Appartement à PARIS-15E
Appartement à PARIS-15E
Appartement à PARIS-15E
Appartement à PARIS-15E
Appartement à PARIS-15E
Appartement à PARIS-15E
Appartement à PARIS-15E
Ce site est protégé par reCAPTCHA la Politique de confidentialité et les Conditions d’utilisation de Google s’appliquent.
Obtenir un prêt immobilier au meilleur taux ?

En poursuivant votre navigation sans modifier vos paramètres, vous acceptez l'utilisation de cookies susceptibles de réaliser des statistiques de visite. Cliquez ici pour plus d'informations