Bénéficiez des services de nos partenaires locaux soigneusement sélectionnés
pour vous accompagner dans votre parcours d'achat immobilier

Plateau croix-rousse - appartement avec loggia et parking - résidence récente accès pmr

— Lyon-4e 69004 —
257 000 €
51 m²
2 pièces
parkingbalcon/terrasseascenseur

Nos partenaires locaux
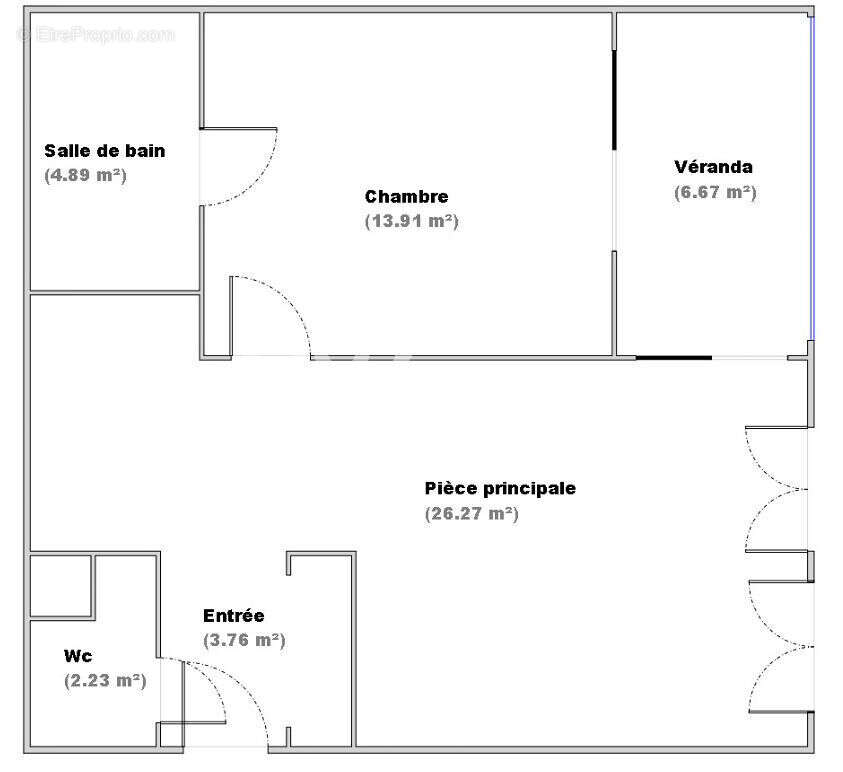
Votre agence Guy Hoquet Lyon 4, forte de 26 ans d'expérience sur le marché immobilier lyonnais, est fière de vous présenter cet appartement T2 de 51.06 m², situé en rez-de-chaussée surélevé d'une résidence moderne et sécurisée construite en 2017. Situé à deux pas de la Place Commandant Arnaud, des commerces et des transports, il offre un cadre de vie calme et pratique. La pièce de vie de 26 m² avec cuisine ouverte est lumineuse. La chambre dispose d'une salle de bains attenante, les WC sont séparés et une loggia accessible depuis le séjour et la chambre complète l'ensemble. L'appartement est en très bon état, ne nécessite pas de travaux et offre de belles prestations (DPE C). Idéal pour un premier achat ou un investissement. Parking en sous-sol en option. Du côté investissement, le bien présente un rendement locatif attractif, compris entre 4,3 % et 4,69 % brut selon le type de location choisie, selon l'Encadrement des Loyers : Location nue : maximum 924 euros HC Location meublée : maximum 1 046.73 euros HC Une place de parking en sous-sol sécurisé est proposée en supplément. Les charges de copropriété s'élèvent à 699 euros par an, et la taxe foncière est de 1 085 euros. Pour toute information ou pour organiser une visite, contactez Anaëlle RAY au [Coordonnées masquées] ou par mail à [Coordonnées masquées] Agent commercial RSAC 884 915 968 Les informations sur les risques auxquels ce bien est exposé sont disponibles sur le site Géorisques : www.georisques.gouv.fr Copropriété de 21 lots (Pas de procédure en cours). Charges annuelles : 699 euros.
Voir plus

Référence: 2674
Bien en copropriété. Nombre de lots : 21. Charges de copropriété : 699 €.
Honoraires à la charge du vendeur.
Barème des honoraires
DPE
A
B
C
D
E
F
G
GES
A
B
C
D
E
F
G

Prêt immobilier

Vous souhaitez connaître votre capacité d’emprunt et trouver le meilleur crédit immobilier ?
Réaliser une simulation gratuite

Appartement à LYON-4E
Appartement à LYON-4E
Appartement à LYON-4E
Appartement à LYON-4E
Appartement à LYON-4E
Appartement à LYON-4E
Appartement à LYON-4E
Appartement à LYON-4E
Appartement à LYON-4E
Appartement à LYON-4E
Appartement à LYON-4E
Appartement à LYON-4E
Appartement à LYON-4E
Appartement à LYON-4E
Appartement à LYON-4E
Appartement à LYON-4E
Appartement à LYON-4E
Ce site est protégé par reCAPTCHA la Politique de confidentialité et les Conditions d’utilisation de Google s’appliquent.
Obtenir un prêt immobilier au meilleur taux ?

En poursuivant votre navigation sans modifier vos paramètres, vous acceptez l'utilisation de cookies susceptibles de réaliser des statistiques de visite. Cliquez ici pour plus d'informations