Bénéficiez des services de nos partenaires locaux soigneusement sélectionnés
pour vous accompagner dans votre parcours d'achat immobilier

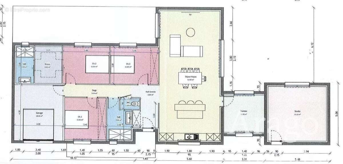
Villa contemporaine à vendre rivesaltes

— Rivesaltes 66600 —
560 000 €
149 m² / 980 m²
5 pièces
parkingjardinpiscine

Nos partenaires locaux
À vendre, sur la commune de Rivesaltes, superbe villa contemporaine 4 faces. Découvrez cette villa édifiée en 2022 sur une parcelle de 980 m², offrant confort, modernité et de belles prestations. La ville de Rivesaltes, réputée pour ses bons vins doux, a des atouts particulièrement intéressants : 10 minutes de Perpignan et des plages catalanes, 5 minutes de l’aéroport et du péage Nord… de nombreux commerces, pharmacies et autres collège et lycée. La villa, construite avec des matériaux de qualité, elle bénéficie encore de la garantie décennale et dommages-ouvrage. Dès l’entrée, vous serez séduits par un vaste séjour lumineux avec cuisine aménagée de plus de 53 m², idéal pour recevoir famille et amis. La maison dispose également : d’un bureau pratique, d’une salle d’eau moderne, de toilettes indépendantes, de trois chambres, dont une suite parentale élégante, et d’un studio indépendant : parfait pour accueillir un proche en toute autonomie ou générer un revenu locatif. À l’extérieur, profitez pleinement de votre cadre de vie avec : une piscine traditionnelle, un spa enterré, et des panneaux solaires en toiture générant un revenu annuel intéressant. Un garage de 18 m² complète ce bien aux prestations haut de gamme. Une opportunité rare à ne pas manquer ! Classe énergie : A. Honoraires à la charge du vendeur.
Voir plus

Référence: 86216189
Barème des honoraires
DPE
A
B
C
D
E
F
G
GES
A
B
C
D
E
F
G

Prêt immobilier

Vous souhaitez connaître votre capacité d’emprunt et trouver le meilleur crédit immobilier ?
Réaliser une simulation gratuite

Maison à RIVESALTES
Maison à RIVESALTES
Maison à RIVESALTES
Maison à RIVESALTES
Maison à RIVESALTES
Maison à RIVESALTES
Maison à RIVESALTES
Maison à RIVESALTES
Maison à RIVESALTES
Maison à RIVESALTES
Maison à RIVESALTES
Maison à RIVESALTES
Maison à RIVESALTES
Maison à RIVESALTES
Maison à RIVESALTES
Maison à RIVESALTES
Maison à RIVESALTES
Maison à RIVESALTES
Maison à RIVESALTES
Maison à RIVESALTES
Maison à RIVESALTES
Ce site est protégé par reCAPTCHA la Politique de confidentialité et les Conditions d’utilisation de Google s’appliquent.
Obtenir un prêt immobilier au meilleur taux ?

En poursuivant votre navigation sans modifier vos paramètres, vous acceptez l'utilisation de cookies susceptibles de réaliser des statistiques de visite. Cliquez ici pour plus d'informations