Maison 6 chambre(s) à vendre

— Volmerange-Les-Mines 57330 —
495 000 €
146 m² / 834 m²
8 pièces
parking

Maison 6 chambres à vendre - 495 000 €

LUNARDON Romuald Agent commercial chez RE/MAX, spécialiste de l'immobilier vous propose cette spacieuse maison individuelle et familiale de 146m² sur un grand terrain de 834m², située dans un lotissement calme et recherché, sur la commune de Volmerange-les mines.

Proche de la frontière et de la gare, elle est idéalement située.

Rénovée récemment, elle offre des prestations modernes et de beaux volumes répartis sur deux niveaux. 
 
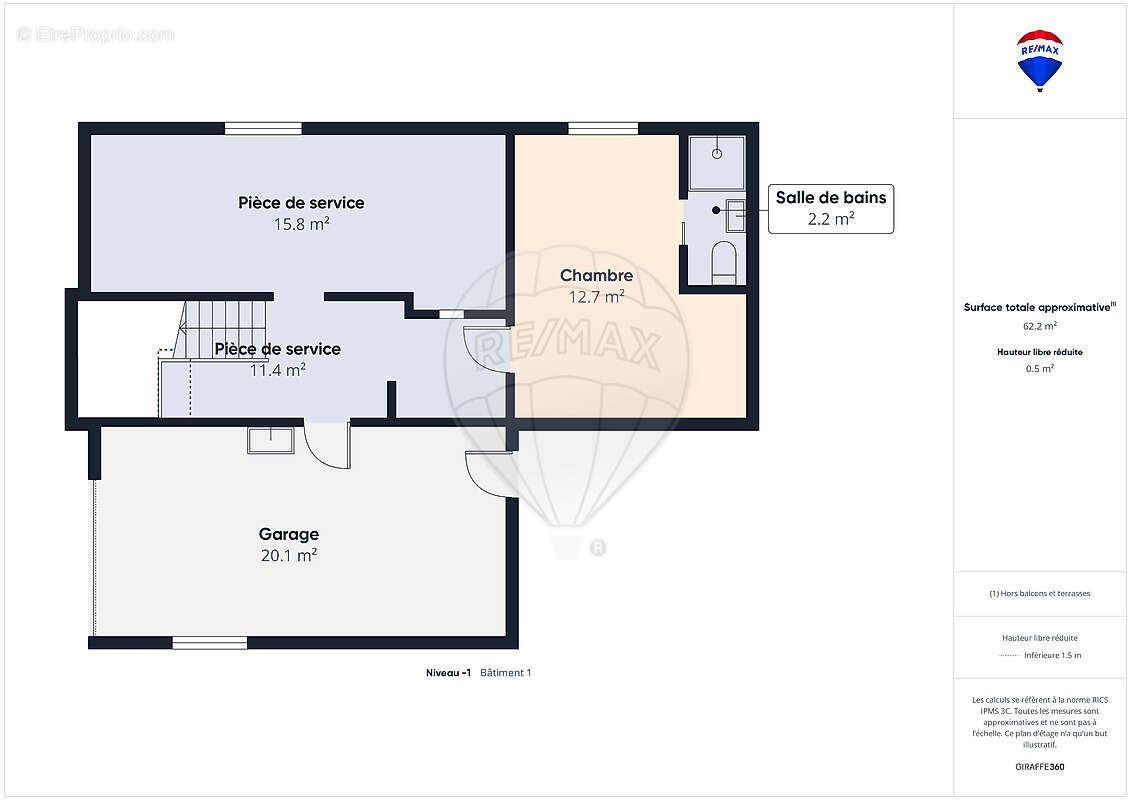
Rez-de-chaussée : 
Un petit appartement avec entrée indépendante qui se compose d'un vaste salon/séjour lumineux ouvert sur l’extérieur avec une cuisine ouverte. Une salle de douche avec WC et 2 chambres.

 Un garage attenant accessible de la maison et de l'appartement.

Dans la partie maison une chambre avec SDB et WC privatif. 
Une chaufferie 
 

À l’étage : 

- Un vaste salon/séjour lumineux ouvert sur un balcon

- Une cuisine indépendante

- 3 chambres confortables

- Une salle de bain avec WC

Extérieur : 

Vous profiterez d’un jardin clos avec terrasse, parfait pour les moments conviviaux en famille ou entre amis. Et un petit chalet de jardin pour ranger le nécessaire pour le jardinage.
 
Atouts de la maison : 

Façade isolante
Installation de chauffage entièrement remis à neuf (Le chauffage pompe à chaleur + ballon thermodynamique.) 
Isolation des combles récente 
Volets électriques motorisés


À prévoir : 
Quelques finitions intérieures à rafraîchir 
Une maison offrant espace, confort et performance énergétique, idéale pour accueillir une famille dans un cadre de vie agréable. 
Cette maison n’attend que ses nouveaux propriétaires, alors ne tardez pas à me contacter. 

 
La présente annonce a été rédigée sous la responsabilité éditoriale de l'agent commercial Romuald LUNARDON (SIRET N°889[Coordonnées masquées]3).  
Honoraires à la charge du vendeur.
Les informations sur les risques auxquels ce bien est exposé sont disponibles sur le site Géorisques : www.georisques.gouv.fr .
Voir plus

Référence: 749241112-23
Honoraires à la charge du vendeur.
DPE
A
B
C
D
E
F
G
GES
A
B
C
D
E
F
G

Prêt immobilier

Vous souhaitez connaître votre capacité d’emprunt et trouver le meilleur crédit immobilier ?
Réaliser une simulation gratuite

Maison à VOLMERANGE-LES-MINES
Maison à VOLMERANGE-LES-MINES
Maison à VOLMERANGE-LES-MINES
Maison à VOLMERANGE-LES-MINES
Maison à VOLMERANGE-LES-MINES
Maison à VOLMERANGE-LES-MINES
Maison à VOLMERANGE-LES-MINES
Maison à VOLMERANGE-LES-MINES
Maison à VOLMERANGE-LES-MINES
Maison à VOLMERANGE-LES-MINES
Maison à VOLMERANGE-LES-MINES
Maison à VOLMERANGE-LES-MINES
Maison à VOLMERANGE-LES-MINES
Maison à VOLMERANGE-LES-MINES
Maison à VOLMERANGE-LES-MINES
Maison à VOLMERANGE-LES-MINES
Maison à VOLMERANGE-LES-MINES
Maison à VOLMERANGE-LES-MINES
Maison à VOLMERANGE-LES-MINES
Maison à VOLMERANGE-LES-MINES
Maison à VOLMERANGE-LES-MINES
Maison à VOLMERANGE-LES-MINES
Ce site est protégé par reCAPTCHA la Politique de confidentialité et les Conditions d’utilisation de Google s’appliquent.
Obtenir un prêt immobilier au meilleur taux ?

En poursuivant votre navigation sans modifier vos paramètres, vous acceptez l'utilisation de cookies susceptibles de réaliser des statistiques de visite. Cliquez ici pour plus d'informations