Bénéficiez des services de nos partenaires locaux soigneusement sélectionnés
pour vous accompagner dans votre parcours d'achat immobilier

Maison 72m² à saint-symphorien-des-bois

— Saint-Symphorien-Des-Bois 71800 —
95 000 €
72 m² / 1 382 m²
3 pièces
parkingjardin

Nos partenaires locaux
MAISON DE CARACTERE CHAROLAIS BRIONNAIS A RENOVER 71800 ST SYMPHORIEN DES BOIS
Efficity l'agence qui estime votre bien en ligne, par l'intermédiaire de B DELHOMME vous propose une maison typique du charolais Brionnais à rénover.
Edifiée sur une parcelle de 1382 m2 dans un petit hameau à 2 minutes du village (avec commerce alimentation de proximité), cette maison offre toutes les possibilités d'aménagement selon vos goûts et envies.
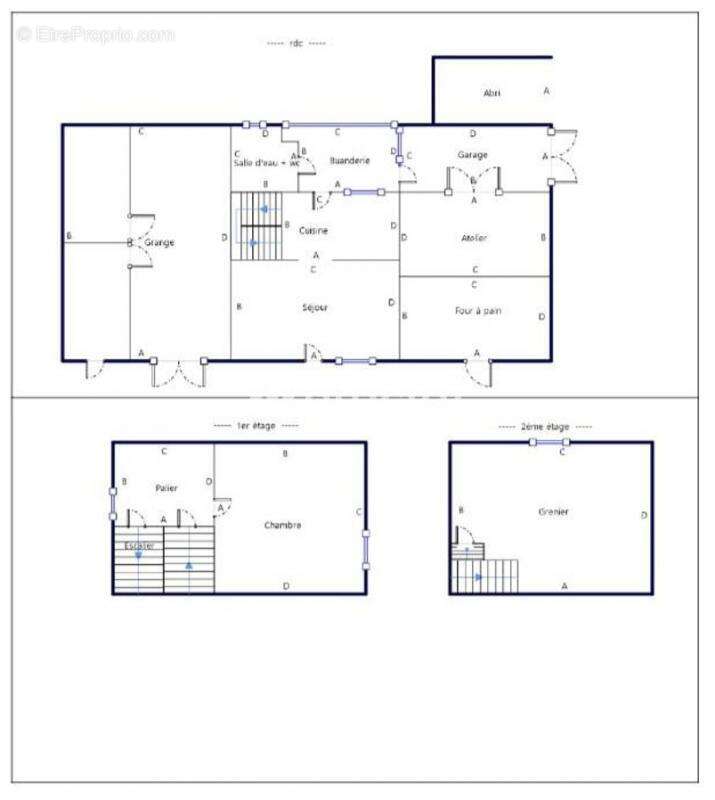
Actuellement, la porte d'entrée donne sur une pièce séjour (environ 25 m2) avec à l'arrière une cuisine séparée (environ 9m2) où se trouve un escalier en bois. Le rez de chaussée se poursuit par une extension plus récente qui dessert une salle de douche et toilettes, une arrière cuisine/buanderie, un garage et un atelier.
Au premier étage se trouve un grand dégagement, et une chambre d'environ 20 m2
Au deuxième étage, sous le toit, un grenier qui ne demande qu'à être aménagé.
La maison est complétée par une grange qui peut permettre d'avoir une belle extension à la partie habitable actuelle. et une petite extension ou se trouve un four professionnel à pains et pâtisseries
Le toit de la partie habitation a été refait à neuf en aout 2025.
L'ensemble est à rénover entièrement et bénéficie d'un fort potentiel
La Clayette à 7 minutes, gare TGV Macon Loché à 53 minutes (Paris à 1h25), Lyon à 1h45
Les informations sur les risques auxquels ce bien est exposé sont disponibles sur le site Georisque : georisques. gouv. fr
Bernard Delhomme - EI - est Agent Commercial mandataire en immobilier, immatriculé au Registre Spécial des Agents Commerciaux du Tribunal de Commerce de Nanterre sous le n°895106623.
Siège social du mandant : effiCity, 48 avenue de Villiers - 75017 PARIS - Société par Actions Simplifiée, société au capital de 132 373,05 euros, immatriculée au RCS Paris 497 617 746 et titulaire de la Carte professionnelle CPI 75[Coordonnées masquées]02 025 - CCI Paris IDF - Caisse de Garantie : GALIAN Assurances 89 rue de la Boétie 75008 Paris
Voir plus

Référence: 191615
Honoraires à la charge du vendeur.
Barème des honoraires

Prêt immobilier

Vous souhaitez connaître votre capacité d’emprunt et trouver le meilleur crédit immobilier ?
Réaliser une simulation gratuite

Maison à SAINT-SYMPHORIEN-DES-BOIS
Maison à SAINT-SYMPHORIEN-DES-BOIS
Maison à SAINT-SYMPHORIEN-DES-BOIS
Maison à SAINT-SYMPHORIEN-DES-BOIS
Maison à SAINT-SYMPHORIEN-DES-BOIS
Maison à SAINT-SYMPHORIEN-DES-BOIS
Maison à SAINT-SYMPHORIEN-DES-BOIS
Maison à SAINT-SYMPHORIEN-DES-BOIS
Maison à SAINT-SYMPHORIEN-DES-BOIS
Maison à SAINT-SYMPHORIEN-DES-BOIS
Maison à SAINT-SYMPHORIEN-DES-BOIS
Maison à SAINT-SYMPHORIEN-DES-BOIS
Maison à SAINT-SYMPHORIEN-DES-BOIS
Ce site est protégé par reCAPTCHA la Politique de confidentialité et les Conditions d’utilisation de Google s’appliquent.
Obtenir un prêt immobilier au meilleur taux ?

En poursuivant votre navigation sans modifier vos paramètres, vous acceptez l'utilisation de cookies susceptibles de réaliser des statistiques de visite. Cliquez ici pour plus d'informations