Bénéficiez des services de nos partenaires locaux soigneusement sélectionnés
pour vous accompagner dans votre parcours d'achat immobilier

Exclusivite - lorient centre - appartement t3 de 50m² dernier etage

— Lorient 56100 —
136 640 €
50 m²
3 pièces

Nos partenaires locaux
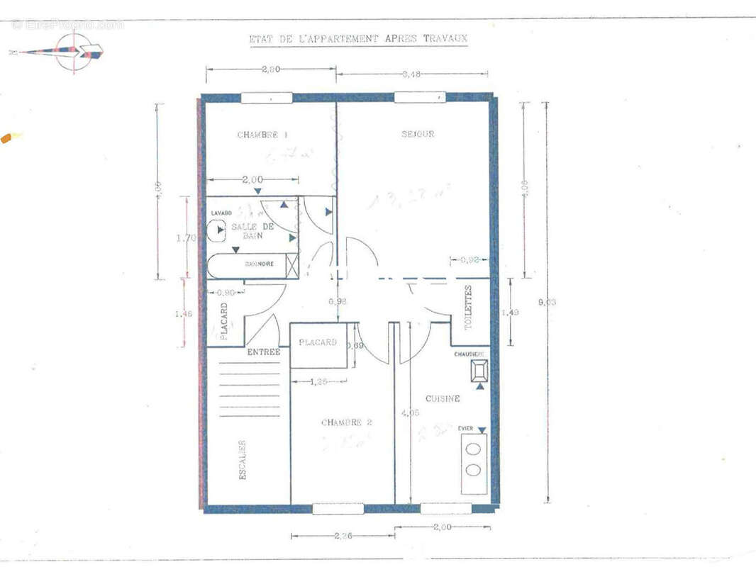
EXCLUSIVITÉ - DERNIER ÉTAGE COPROPRIETE SANS CHARGES En vente à 17 km de l'océan Atlantique, nous vous présentons cet appartement de 3 pièces orienté est-ouest de 50 m² à LORIENT (56100). Il comporte une entrée, un rangement, un wc indépendant, une cuisine indépendante, un salon sur parquet bénéficiant d'une vue dégagée, une chambre côté cour de 9m² et un bureau ou petite chambre de 7m². Chaudière gaz individuelle remplacée en 2023 et fenetres PVC double vitrage. Combles isolés. Copropriété en syndic bénévole. Un caveau situé dans la cour commune offre à cet appartement des rangements supplémentaires. Il se situe au 2e et dernier étage (seul à l'étage) d'un petit immeuble des années 50 composé de 3 appartements. L'appartement est proche de toutes commodités : cet appartement se trouve à trois minutes des écoles. Il y a pour la petite enfance une crèche à moins de 10 minutes à pied. On trouve un arrêt de bus à une minute de l'appartement. La nationale N165 est accessible à 3 km. Pour vos loisirs, vous pourrez compter sur le cinéma Cineville tout comme sur deux ports de plaisance et un bassin de natation dans les environs. Il y a aussi des restaurants, des commerces, des boulangeries, quatre supermarchés, deux boucheries-charcuteries et trois poissonneries. Cet appartement a une classe énergie D (197 kWh/m² annuels). Côté émissions de gaz à effet de serre, la classe climatique est aussi notée D (chiffre annuel : 40 Kg CO2/m²). Le montant des dépenses annuelles d'énergie pour un usage standard est estimé entre 780 euros et 1 110 euros. Il est à vendre pour la somme de 136640 euros frais d'agence inclus. Honoraires à la charge de l'acquéreur : 6,75% du prix du bien. Cet appartement est à vendre sous mandat exclusif. Il fait partie d'une petite copropriété constituée de 3 lots. Les informations sur les risques auxquels ce bien est exposé sont disponibles sur le site Géorisques : www.georisques.gouv.fr. Envie d'en savoir plus sur cet appartement en vente ? Prenez contact avec notre agence immobilière Agence Barraine IMMO Lorient. (6.75 % honoraires TTC à la charge de l'acquéreur.) Copropriété de 3 lots - dont 3 lots habitation.
Voir plus

Référence: LT00343-MB
Bien en copropriété. Nombre de lots : 3. Procédure en cours.
Honoraires d'agence de 6.75% à la charge de l'acquéreur
Barème des honoraires
DPE
A
B
C
D
E
F
G
GES
A
B
C
D
E
F
G

Prêt immobilier

Vous souhaitez connaître votre capacité d’emprunt et trouver le meilleur crédit immobilier ?
Réaliser une simulation gratuite

Appartement à LORIENT
Appartement à LORIENT
Appartement à LORIENT
Appartement à LORIENT
Appartement à LORIENT
Appartement à LORIENT
Appartement à LORIENT
Appartement à LORIENT
Appartement à LORIENT
Appartement à LORIENT
Appartement à LORIENT
Appartement à LORIENT
Appartement à LORIENT
Appartement à LORIENT
Appartement à LORIENT
Appartement à LORIENT
Appartement à LORIENT
Appartement à LORIENT
Appartement à LORIENT
Appartement à LORIENT
Ce site est protégé par reCAPTCHA la Politique de confidentialité et les Conditions d’utilisation de Google s’appliquent.
Obtenir un prêt immobilier au meilleur taux ?

En poursuivant votre navigation sans modifier vos paramètres, vous acceptez l'utilisation de cookies susceptibles de réaliser des statistiques de visite. Cliquez ici pour plus d'informations