Bénéficiez des services de nos partenaires locaux soigneusement sélectionnés
pour vous accompagner dans votre parcours d'achat immobilier

Appartement 52m² à sainte-maxime

— Sainte-Maxime 83120 —
399 000 €
52 m²
2 pièces
balcon/terrasse

Nos partenaires locaux
Iad France - Pierre Benahim ([Coordonnées masquées]) vous propose : Appartement 2 pièces rénové avec balcon et cave - Sainte-Maxime

Idéalement situé à proximité immédiate du centre-ville de Sainte-Maxime, avec un accès rapide aux écoles, aux commerces et aux plages, tout en bénéficiant d'un environnement calme.

Cet appartement se trouve au sein d'une petite copropriété de 4 lots, entièrement rénovée par une société spécialisée dans la réhabilitation.

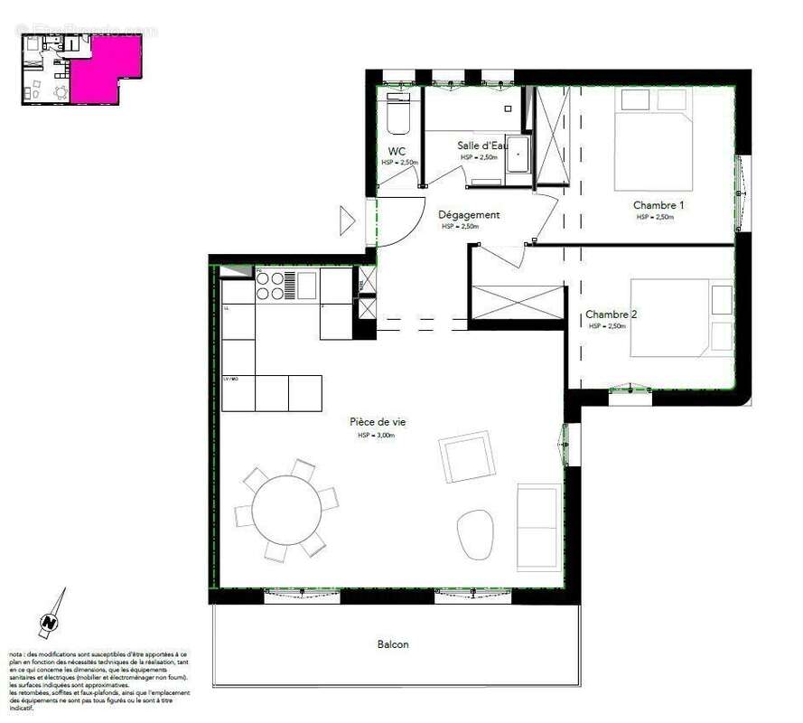
Situé au 1er étage, il offre une surface d'environ 52 m² environ comprenant un séjour lumineux avec cuisine ouverte, une chambre confortable et une salle d'eau moderne. Vous profiterez également d'un balcon de 10 m² environ avec aperçu mer et une vue dégagée sur l'environnement.

La rénovation, de grande qualité, vous permettra d'emménager immédiatement et de simplement poser vos valises.

L'appartement dispose également d'une cave privative.

Un bien rare sur le marché, idéal en résidence principale, secondaire ou pour un investissement locatif à Sainte-Maxime.

La présente annonce immobilière vise 1 lot principal situé dans une copropriété formant 4 lots au total ne faisant l'objet d'aucune procédure en cours et d'un montant de charges d'environ 50 ¤ par mois (soit 600 ¤ annuel) déclaré par le vendeur. Honoraires d'agence à la charge du vendeur. Information d'affichage énergétique sur ce bien : classe ENERGIE A indice 165 et classe CLIMAT A indice 5. Les informations sur les risques auxquels ce bien est exposé sont disponibles sur le site Géorisques : www.georisques.gouv.fr. La présente annonce immobilière a été rédigée sous la responsabilité éditoriale de M. Pierre Benahim EI (ID 89263), mandataire indépendant en immobilier (sans détention de fonds), agent commercial de la SAS I@D France immatriculé au RSAC de FREJUS sous le numéro 889221040, titulaire de la carte de démarchage immobilier pour le compte de la société I@D France SAS. Le présent bien est commercialisé dans le cadre d'une délégation de mandat.
Retrouvez tous nos biens sur notre site internet. www.iadfrance.fr.
Informations LOI ALUR :
Soumis au régime de copropriété.
Nombre de lots : 4.
Quote part annuelle(moyenne) : 600 euros.
Honoraires charge vendeur. (gedeon_6727_31879113)
Voir plus

Référence: 1815352
Bien en copropriété. Nombre de lots : 4. Charges de copropriété : 600 €.
Honoraires à la charge du vendeur.
DPE
A
B
C
D
E
F
G
GES
A
B
C
D
E
F
G

Prêt immobilier

Vous souhaitez connaître votre capacité d’emprunt et trouver le meilleur crédit immobilier ?
Réaliser une simulation gratuite

Photo 1 - Appartement à SAINTE-MAXIME
Photo 1
Photo 2 - Appartement à SAINTE-MAXIME
Photo 2
Photo 3 - Appartement à SAINTE-MAXIME
Photo 3
Photo 4 - Appartement à SAINTE-MAXIME
Photo 4
Photo 5 - Appartement à SAINTE-MAXIME
Photo 5
Photo 6 - Appartement à SAINTE-MAXIME
Photo 6
Photo 7 - Appartement à SAINTE-MAXIME
Photo 7
Photo 8 - Appartement à SAINTE-MAXIME
Photo 8
Ce site est protégé par reCAPTCHA la Politique de confidentialité et les Conditions d’utilisation de Google s’appliquent.
Obtenir un prêt immobilier au meilleur taux ?

En poursuivant votre navigation sans modifier vos paramètres, vous acceptez l'utilisation de cookies susceptibles de réaliser des statistiques de visite. Cliquez ici pour plus d'informations