Maison 140m² à le tronchet

— Le Tronchet 35540 —
210 000 €
140 m² / 566 m²
5 pièces
jardin

Iad France - Marie Olivier vous propose : Longère à rénover avec dépendances - Le Tronchet- A deux pas du Golfe

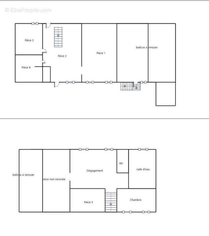
Située sur la commune du Tronchet, cette longère en pierre datant de 1870, d' une superficie de 140 m² sur un terrain de 566 m² offre un beau potentiel pour un projet de rénovation et ne demande qu'à retrouver tout son charme.
Les travaux ont déjà commencé, il reste à les poursuivre selon vos envies.

En plus de la maison principale, la propriété dispose de deux dépendances et d'une grange, parfaites pour créer des espaces supplémentaires ou imaginer différents projets.

Un projet idéal et plein de possibilités pour les amoureux de la pierre et de la rénovation!

Bonus : certains matériaux déjà achetés seront laissés sur place pour poursuivre la rénovation

Une opportunité rare à ne pas manquer, contactez moi pour organiser une visite dès maintenant.

Honoraires d'agence à la charge du vendeur.
Bien non soumis au DPE. Les informations sur les risques auxquels ce bien est exposé, y compris l'obligation légale de débroussaillement, sont disponibles sur le site Géorisques : http://www.georisques.gouv.fr.
La présente annonce immobilière a été rédigée sous la responsabilité éditoriale de Mme Marie Olivier mandataire indépendant en immobilier (sans détention de fonds), agent commercial de la SAS I@D France immatriculé au RSAC de SAINT MALO sous le numéro 909601338, titulaire de la carte de démarchage immobilier pour le compte de la société I@D France SAS.
Informations LOI ALUR :
Honoraires charge vendeur. (gedeon_6727_31879976)
Voir plus

Référence: 1845607
Honoraires à la charge du vendeur.

Prêt immobilier

Vous souhaitez connaître votre capacité d’emprunt et trouver le meilleur crédit immobilier ?
Réaliser une simulation gratuite

Photo 1 - Maison à LE TRONCHET
Photo 1
Photo 2 - Maison à LE TRONCHET
Photo 2
Photo 3 - Maison à LE TRONCHET
Photo 3
Photo 4 - Maison à LE TRONCHET
Photo 4
Photo 5 - Maison à LE TRONCHET
Photo 5
Ce site est protégé par reCAPTCHA la Politique de confidentialité et les Conditions d’utilisation de Google s’appliquent.
Obtenir un prêt immobilier au meilleur taux ?

En poursuivant votre navigation sans modifier vos paramètres, vous acceptez l'utilisation de cookies susceptibles de réaliser des statistiques de visite. Cliquez ici pour plus d'informations